건축가紙 2011 5/6월호 vol.250 에 게재된
작품 비평내용임.
건축가 방철린
비 평 임종엽
김현섭
박석중
조준배
Criticism
방철린의 탄탄스토리하우스
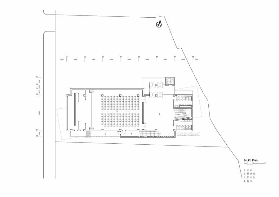
건축 개요
대지위치: 경기도 파주시 교하읍 문발리 519-1
지역지구: 준공업지역
용도: 전시장, 업무시설
대지면적: 1,629.00㎡
건축면적: 581.52㎡
연면적: 1,679.10㎡
조경면적: 374.05㎡
건폐율: 35.69%
용적율: 95.95%
규모: 지상 4층 지하 1층
구조: 철근콘크리트 구조
내부마감: 노출 콘크리트, 석고보드 위 수성 페인트,
나무뿌리 흡음보드, 합판 위 고급 래커외부마감: ZINC, 노출콘크리트,
후동석 버너구이, THK18복층 유리
설계담당: 박운정, 박재성
인테리어: 건축그룹칸
시공: 삼공종합건설
설계기간: 2004년 10월 ~ 2005년 3월
공사기간: 2005년 4월 ~ 2006년 7월
건축가 방철린 BANG Chul Rin
1948년 생으로 한양대학교를 졸업하고 공간연구소와 정림건축에서 십수 년간 건축 경험을 쌓았으며 1991년 (주)인・토종합건축을 설립하고 2006년에 건축그룹칸(間) 종합건축사사무소로 사무소명을 바꿔 현재까지 활발한 작품 활동을 하고 있다.
한국건축가협회 부회장과 한국건축역사학회 이사를 지냈고 서울시건축위원회 위원, 대한민국 건축대전 운영위원장, 대한민국 건축문화대상 심사위원, 한국건축가협회 작품상 심사위원, 한국농어촌 건축문화대상 심사위원장 등을 지냈으며 현재 한국건축가협회 초대 작가와 명예 이사로 한양대학교 건축대학원 겸임 교수이다.
대표작으로는 대덕과학문화센터, 하늘마당 시리즈, 연남동스텝, 미제루, 한동대학교 기숙사, ‘한국건축100년’ 전 전시 설계, 원주제일교회 수련원, 산빛마당, 연하당, 교육과학사 사옥, 중앙입시교육연구원, 북이십일 사옥, 탄탄스토리하우스, 덕윤웨이브 사옥 등이 있다.
대통령 표창과 문화관광부장관 표창을 받았고, 아카시아(ARCASIA; Architects Regional Council of Asia) 건축상 금상을 받았으며, 다수의 한국건축가협회 작품상과 아천건축상 그리고 다수의 대한민국 건축문화대상과 대한건축학회 작품상 등을 수상하였다.
4.3그룹 동인으로 1993년 인공갤러리에서 ‘4.3그룹전’을 공동 주최하였고, ‘서울1991’에 출품하였으며, ‘30-40초대작가전’을 기획하였다. 1999년에는 과천 현대미술관에서의 ‘한국건축100년 전’을 행사위원장으로 기획•진행하여 성공적 개최로 대통령 표창을 받은 바 있다. 2009년에는 예술의 전당 한가람 디자인미술관에서 ‘한국건축의 모더니즘 작동성’이란 제목으로 ‘한국건축가 50인 전’을 기획하였다. 공동 저작으로 ‘4.3그룹’, ‘echoes of an era’, ‘한국건축의 모더니즘 작동성’ 등이 있다.
탄탄스토리하우스 설계노트
방철린
탄탄스토리하우스는 공연장과 전시장으로 구성되어 있다. 어린이들은 이곳에서 동화 속의 주인공을 만나고 그 책 속 삽화의 원화를 볼 수 있으며 구연 동화로 들을 수 있는 흥미로운 어린이 시설이다. 파주출판도시의 6섹터에 위치한 대지는 동쪽으로는 심학산, 서쪽으로는 출판도시의 주 진입도로 방향으로 열려 있었으며 파주출판도시 마스터플랜상 이곳의 건축 유형은 길다란 직육면체의 일자형 거젤 유형으로 지정 되어 도시 환경의 흐름에 순응하는 형상을 하고 있었다.
양과 음으로 구성된 동양의 이진법이 그렇듯이 아날로그 세상에서는 이거냐 저거냐(양과 음)를 선택하면서 눈에 거슬리는 것도 참고 견디면서 선별적으로 받아들이는 지혜로 살아왔다. 현대인은 생활 모두가 디지털화된 세상 속에서 이루어진다. 나이가 어린 사람들일 수록 디지털화가 더 되어있는 세상을 산다. 아날로그 이진법과는 달리 0과 1로 구성된 라이프니츠의 이진법으로 만들어진 디지털 세상에서는 ‘이거냐 저거냐’의 선택의 논리가 아닌 ‘살리느냐 없애느냐’의 논리로 사물을 만들어간다. 그러니 깨끗하고 무결점의 세계만을 추구하고 사람 관계마저도 무결점이어야 인정한다. 그래서 성격도 급해지고 참을성도 없는 세계가 되었다. 이럴 때일수록 우리가 사는 건축은 좀더 아날로그적이어서 디지털화 되어가는 사람의 심성을 중화시켜야 한다는 생각을 해왔다.
건축에서 어떻게 하면 좀더 아날로그 적으로 될 수 있을까? 가급적 동선을 길게 함으로써, 짧은 편리함보다 풍부함과 여유가 필요하다고 보았다. 이곳 로비는 전면도로에서 제일 먼 쪽에 배치하고 진입로를 길게 만들어 이곳을 여유 있게 걸어서 진입하도록 하였다. 로비에 들어서면 로비의 가장 먼 쪽에 주 계단을 두어 상층부에 오르려면 가장 긴 방향으로 걸어 올라가야 한다. 계단 옆으로 난 다양한 크기의 창속 장식품이 유아들에게 천천히 걷도록 시선을 유도한다.
목적이 분명한 실들로 구성된 건축은 사람에게서 창조 능력을 빼앗아간다고 생각한다. 한국 전통 건축의 공간들은 한 개의 목적만을 위해 공간을 만들지 않고 그 곳을 운영하는 사람의 지혜에 따라 여러 가지 형태의 쓸모를 가질 수 있도록 되어있음을 본다. 이 곳 탄탄스토리하우스는 이렇게 공간 쓰임새를 다변화 하도록 디자인 되었다. 공연장도 전시장도 사용자의 지혜에 따라 다양한 프로그램을 이 곳에서 수행할 수 있고 이 곳을 방문하는 어린이들은 항상 새로운 형태의 공간 쓰임새를 만날 수 있다.
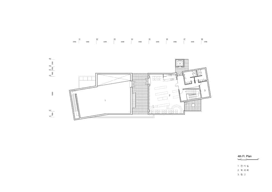
탄탄스토리하우스는 동서 방향으로 길게 자리하고 있다. 긴 몸체 때문에 생기는 남북 간의 시선 차단을 해소하기 위해 4층의 가운데 부분에 하늘마당을 두어 공간의 다양성을 추구함과 동시에 남북간의 소통을 꾀하였다.
이 건축물은 크게 네 개 덩어리의 결합으로 구성하였다. 이 덩어리들은 서로 결합되면서 덩어리와 덩어리가 만나는 곳에 천창, 베란다 등을 배치시킬 수가 있었고, 상하층을 오픈시켜 안팎의 공간에 변화들을 줄 수 있어 건축에 여유와 생기를 불어넣을 수 있었다. 최상부의 긴 덩어리는 옆으로 살짝 틀어서 배치하였는데 이것은 이 부지로의 진입로가 이 탄탄스토리하우스의 건축물의 단변과 직교 방향으로 연해 있기 때문에 약간 비틀어진 각도로 건축물을 보게 함으로서 긴장감을 해소하고 입체적인 파사드의 효과를 얻어내기 위함이었다.
이 덩어리들의 마감은 노출콘크리트, 송판 노출콘크리트, 화강석 잔다듬, 검정색 징크 판 등 네 가지 재료를 사용하였다. 이는 서로 다른 속성을 가진 재료로 마감된 덩어리를 대비시킴으로써 이 건축물이 다른 덩어리들로 결합되어있음을 강조하기 위함이다. 그 결과 이곳을 찾는 방문자는 층마다 다른 프로그램의 기능과 함께 다양한 형태의 건축물과 대화를 하게 된다.
탄탄스토리하우스는 디지털로 점철된 현대 사회에 노출되어 있는 어린이들에게 다른 사람을 만나고 또 알게 되고 하는 과정을 통하여 공동체적인 의식을 갖게 함은 물론 디지털 세계 속에서의 정서적인 안정감을 주게 될 것으로 기대한다.
Criticism 1
카페는 아무 것도 가르치려 하지 않으면서, 가장 이상적인 교육을 한다.
이종엽


소다. 단단한 마스터플랜으로부터 시작하여 건축 프로세스가 잘 정제되어 있는
장소이고, 건축가들이 선호하는 이성적인 구성이란 점도 공감하게 된다. 그러나
이런 아카데믹한 시도들에는 건축을 바라보는 이들에게 상대적으로 자연스러움
이 부족해 보이기도 하다. 적지 않은 규율과 전제를 절대적으로 수용해야 하기
때문에 때로는 복합적인 과제를 풀어야 하는 건축가나 평범한 철학을 선호하는
건축가들에게는 필요 이상의 힘이 들어가게 되는 곳이기 때문이다.
‘탄탄스토리하우스’란 작업을 보면서 다시 본 건축가 방철린은 그 동네에서만 이미 6개의 작업을 이루어내었다. 그의 크고 작은 방법론이 이미 구사되고 있었고 연륜의 힘과 여유의 내공이 자신 있어 보였다. 건축가 방철린은 다수의 수상 경력을 통해서 이미 한국적 공간의 지속적인 탐색자로 그 이미지가 구축되어 있다. 그는 이 땅이 지닌 최대한의 가능성과 그가 평소부터 지녀왔던 한국적 공간의 완성을 이 프로젝트에서 찾고 싶어 했을 것이다.
우선 이 땅은 심학산을 등에 지고 있는 긍정적인 면에 비해 상대적으로, 한강을 조망하기에는 다소 불리한 후면 블록 6섹터의 대지였다. 그러나 마스터 플랜상의 배치 축 열을 지켜야 하는 상황에서, 다행스럽게도(?) T형의 인접 대지 가로 상황이 맞대어있음을 놓치지 않았다. 그래서 이 건축은 필지로부터 나온 하나의 언어가 미리 선정되어 있었다고 느껴진다. 그리고 예상되는 또 다른 하나는 그 만의 건축적 관점이 충분히 담기는 아날로그 한 정서와 공동체적 배치를 통해, 그 동안 지속적으로 적용해왔던 한국적 공간의 해석이 있었을 것이다.
한국적 공간이라는 그의 건축적 수법(연하당과 미제루, 하늘마당2 등)은 매스를 분절하여 마당과 같은 유연한 공간을 통해 다양한 가능성이 유발되게 하며, 동시에 각 실의 독립적인 활용도를 증대하게 하는 외부 공간과의 만남을 적극적으로 시도하고자 했을 것 같다. 그런데 사실 이 프로젝트는 그런 것들이 녹록치만은 않았던 것 같다. 우선 직육면체로 요구되는 배치의 규율과 프로그램 상의 요구인 공연장과 전시장이라는 대형 공간의 기능을 모두 만족시켜야 한다. 더하여 평소 추구하던 한국적 공간의 수법을 풀어내기 위해 내부로부터 시작할 수 있는 중정 타입의 공간 배치란 그리 쉽지 않아 보였다. 결국은 필수적인 기능을 두 개로 나누기 보다는, 하나의 수직적 레이어로 적층시키면서, 두 가지 목적을 모두 만족할 매스 결합의 아이디어가 필요했을 것이다. 결국 새로운 시도이자 수법으로 적층 매스를 축의 뒤틀림으로 풀어내고 있다.
T형의 도로와 한강을 향한 대지에서 또 하나의 자연스러운 예각으로의 틀어짐은 기초부터 올라오는 단순한 볼륨 위에 그저 심플하게 관입되는 듯, 얹히는 것이 전부였다. 그러나 그 효과는 생각보다 매우 다양하고 복합적으로 읽히며, 틀어진 매스들 사이에서 부분적으로 생기는 발코니 공간의 효율성과 천창이 만들어주는 빛의 매력을 보여주기에 충분했다. 그러나 코어의 분리와 매스의 중첩, 그리고 다양한 외장 재료를 통해서 축적되는 박스 타입의 과감한 볼륨감은 가로선 상 하나의 상징적인 점으로 읽혀지기도 하지만, 오히려 공격적인 자세를 취하듯이 보이기도 한다. 그래서 이 건축에서는 그 동안 추구되어 오던 공간의 섬세함과 따뜻함이 다소 결여되어 보이는 위험을 감수해야 했을 것이다. 반면, 중앙의 대형 공간들(공연장과 전시장)을 중심으로 다양한 부속적, 지원적 공간들은 외부와 만남을 연결하기도 하고, 변화와 쉼을 주고자 하는 작가의 의도가 충분히 읽혀지며, 큰 공간과 작은 공간 사이의 즐거운 변주적 조합에 대한 노력의 결과가 분명하게 드러난다.
단지 전체적인 매스가 응축된 내부적 매스로부터 출발하다 보니, 공간의 안과 밖, 내향성과 외향성, 열림과 닫힘의 균형은 한쪽으로 기울어질 수밖에 없어 보인다. 더구나 공간의 기능상 개구부의 면적도 최소화되어 전체적인 매스감은 극대화되어 있다. 담백한 노출콘크리트와 고급스런 후동석 잔다듬, 그리고 우아한 짙은 색의 징크는 모두가 선호할 수 있는 재료들이다. 그런데 그것이 모두 하나로 축적되어 만들어낸 양감은 즐거운 ‘탄탄’함을 넘어 다소 무거운 분위기의 중후함이었다. 그래서 이 작업에서는 건축가의 긍정적인 의도에도 불구하고, 단 하나의 아쉬움, 즉 스케일간의 충돌이 문제처럼 보인다.
주 동선은 대지에서 입구까지 의도적으로 천천히 안내되고, 2층 전시장으로 이어지는 연속적이고, 과정적인 동선으로의 계단실은 어린이들에게 기대감과 설렘을 만들어주기에 충분하다. 더구나 어린이의 눈높이에 맞추어 시각적으로 열려있는 주 계단실 측면의 크고 작은 창들은 건축물의 내, 외부에서 동시에 호기심을 만들어내는 표정이다. 저층부에서 충분히 표현되지 못했던 분절된 공간의 다양성은 4층에서 소 전시실과 북 카페로 배치되며 외부 공간과 만나게 하여 그 효과를 적절히 만회하고 있다. 더구나 4층 작은 마당 공간에서 지붕 층으로 이어지는 동선은 그 하부에서 아쉬웠던 대지주변 및 한강과의 만남을 아낌없이 해소하게 해준다.
건축을 감상하고 즐기는 사람에게 건축가 방철린의 건축 수법은 비교적 분명하고도 지속적이어서 안정적이다. 깊은 저변에 늘 깔려있는, 특유의 아날로그와 정감 어린 공동체에 대한 건축가의 소박한 의지는 이 프로젝트에서 처음 ‘건축이라는 즐거운 창작물’을 만나게 될 어린이들과 부모들에게도 충분히 전달할 수 있다고 생각된다. 가능한 가장 긴 동선을 통해 오랜 시간을 누리게 하였고, 임원실의 안정감과 사무 공간의 수평적 띠 창에서 보이는 논밭의 풍경을 소중히 하고자 하는 의도, 그리고 화장실에서도 빛의 연출과 함께 상부에서 모자이크 오브제에 대한 기억으로 이어지게 하는 재미와 자투리 공간에 대한 배려 등, ‘건축’에서만 즐길 수 있는 크고 작은 테크닉을 놓치지 않는다. 요즘같이 서로 이해하지도 못하는 과장된 언어의 의미 부여와 오버하려는 화려함, 그러면서 그래픽이 판치는 얇은 건축 시대에서도 건축가란 여전히 그저 ‘장인’임을 다시 일깨워주는 그의 ‘숙성된 무위로서의 자세’가 고맙기도 하다.
베네치아에서 가장 오래되고 사랑 받는 카페에는 이런 말이 적혀 있다. “카페는 아무것도 가르치려 하지 않으면서, 가장 이상적인 교육을 한다.”
임종엽
이탈리아 국가건축사(dott. Arch.)로 밀라노 국립건축대학(politecnico di milano)에서 극장 건축 설계와 환경디자인을 전공했고, 숙명여대 미술대학 교수와 해안건축에서 디자인 랩 본부장으로 활동했다. 한국건축가협회 평론분과위원회 부위원장, 인하대학교 건축학과 교수로 재직 중이다. 


Critism2
트위스트효과
방철린의 파주출판도시 탄탄스토리하우스 스토리
김현섭

탄탄스토리하우스를 위해 건축가 방철린에게 부여된 땅은 동쪽으로 심학산을 등지며 한강 쪽의 서편으로는 삼거리 자동차 도로와 마주하고 있는 대지다. 산과 강 사이의 공간 흐름을 위해 – 민현식의 말을 빌면 ‘수로에 직교하여 땅을 동서로 가로지르는 여러 녹도(綠道, green corridor)들’을 위해(『건축에게 시대를 묻다』, 2006) – 이 일대 건물들은 대개 기다란 몸체를 꾸리며 도로에 면한 쪽을 단변으로 갖게 되어 있다. 그러나 이 프로젝트에서 직교 좌표를 고수한다면, 건물 매스를 남쪽 대지 경계선에 밀착시키지 않는 이상, 건물의 단변은 삼거리 교차점으로부터 상당히 소원해지게 된다. 다시 말해 그 상태로는 동서 방향인 회동길을 따라 이 대지에 접근할 때 (건물의 정면을 정면으로 응시하지 못함으로 인해) 전체 건물의 존재감이 미약할 수밖에 없다는 뜻이다. 이에 대한 건축가의 해결책이 바로 기다란 매스를 살짝 돌려 단변을, 즉 건물의 얼굴을 교차점으로 향하게 하는 것이었다. 콘텍스트에 대한 선 굵은 제스처다.
이 같은 상부 매스의 트위스트(twist)는 도로와의 관계 맺기 이외에도 다양한 효과를 유발한다. 우선은 도로와 직각 체계를 유지하고 있는 매스들과의 중첩 및 관입으로 형성된 비직교적(non-orthogonal) 공간이 가장 특징적이라 할 수 있다. 1~2층에서는 상부 매스의 뒤튼 흔적이 계단실 및 이와 인접한 공간에서만 희미하게 암시되지만, 3층에 와서는 장축 양끝의 사무실과 창고에서 이런 추임새가 명확해지고, 이윽고 4층에 이르면 그 레벨의 주공간인 전시실과 북카페에서 비직교적 공간이 만개한다. 질서와 효율성을 주는 대신 때때로 관리와 통제의 도구가 되는 사각형의 직교 공간과 비교하면, 이런 공간은 좀 더 자유롭고 이완된 분위기를 연출하며(물론 이 건물에서의 비직교 공간도 여전히 제한된 범위에서 형성되어 긴장의 끈을 놓을 수 없으나), 모든 사물을 소실점으로 집중시키는 근대의 투시도적 인식에 반기를 든다. 이들은 가히 ‘예견된 우발적 공간(expected accidental space)’이라 부를 수 있으리라. 1층 공연장의 좌석 배치와 4층 북카페의 레이아웃이야말로 이 둘의 양상을 대조적으로 보여주는 전형적인 예라 하겠다. 연남동 다세대 주택 ‘스텝’(1995)의 계단실에서 실험된 사선이 10년을 지나 탄탄스토리하우스에서 총체적으로 도입된 셈이다.
또 다른 트위스트 효과는 중첩된 매스 사이의 자투리 공간이 천창이나 발코니로 사용된 데에 나타난다. 물론 상하부 매스가 나란히 포개어졌어도 다른 방식을 통해 천창과 발코니를 둘 수 있지만, 매스들의 비직교 관입은 예각과 둔각의 모서리에서 이런 건축 요소의 맺고 끊음에 대한 구실과 기준이 되어준다. 한편, 외부에서 감지되는 착시 현상 역시 상부 매스의 회전이 주는 빼놓을 수 없는 효과다. 주차장을 면하는 주출입구 쪽 파사드를 보라. 시선으로부터 상부 매스 동서 양끝까지의 거리 차로 인해 평지붕의 건물이 마치 경사 지붕으로 보이지 않는가? 이런 현상은 반대쪽 입면으로 오면 반전된 경사의 물매로 치환된다.
이 모든 효과들의 근원은 결국 주어진 콘텍스트에 대한 건축가의 대응이라 말할 수 있다. 주어진 지형 조건과 도로 체계에 대
한 민감한 반응이 기다란 상부 매스의 트위스트라는 건물 전체의 밑그림을 그렸기 때문이다. 물론 이것은 동일한 상황 가운데에서도 건축가의 해법이 다양하므로, 선행 조건이 모든 것을 재단한다는 결정론적 사고와는 크게 다르다. 이처럼 대지의 콘텍스트를 준거로 삼는 방철린과 그 세대 건축가들의 여전한 디자인 방법론은 좀 더 젊은 건축가들, 특히 현대도시의 정지(整地)된 공간에서 땅의 특수성을 논하길 거부하는 김영준의 그것과 흥미로운 대비를 이룬다. 탄탄스토리하우스로부터 서쪽으로 두어 블록 건너편에 위치한 김영준의 ‘학현사(도서출판 양서원)’는 외부 조건과는 무관하게 내면으로 침잠하며 스스로의 논리만으로 유희한다(김현섭, 「하이퍼 센서빌리티의 내향적 미로: 김영준의 학현사에 관한 소고」, 『건축가』 2009 09/10). 그러나 과연 익명적 현대 도시 구조라 하여 완전한 콘텍스트의 말소가 가능할까? 초기의 주택 시리즈를 통해 형태 자체만의 내적 논리에 충실했던 피터 아이젠만도 웩스너 센터를 위시한 후기 작품에서는 주어진 도시 체계
와 역사의 기억을 차용하지 않았던가. 좀 다른 맥락의 이야기였지만 게오르그 루카치가, 논평이 결여된 사실들만의 단순한 나열에도 이미 ‘해석’이 내포되어 있다고 말한 것은 멀찌감치나마 중요한 사실을 시사한다. 아무리 익명의 도시 구조라도 지구 위의 한 장소를 점유하는 이상, 그리고 특히 대지 경계선이 마름되면 더더욱, 이미 그 장소만의 특수성을 획득하게 된다는 사실 말이다. 이것이 방철린의 탄탄스토리하우스가 역설하고 있는 탄탄한 건축을 위한 스토리이다. 그러나 이 스토리에도 아직은 반전이 남아있다.
김현섭
영국 셰필드대학교에서 근대건축사를 연구했으며, 현재 고려대학교에서 건축 역사를 가르치고 있다. 한국건축가협회 평론분과 위원으로 활동 중이다.
Critisism 3
느리고 길게 걷는다는 의미
글 박석중

건축가 방철린의 건축 이야기는 땅에 대한 이야기로 시작한다. 땅에 대한 해석을 통해 건축물의 배치와 형태가 자연스럽게 만들어진다는 이야기가 되는 것인데, 이러한 태도와 방식은 각 건축가들의 작업 태도나 방식에 따라 달리 해석될 수 있다고 본다. 건축가 방철린의 건축 태도가 타당한 것인가의 논의를 차치하고, 땅을 대하는 건축가의 이런 자세는 대지 위에 구상화되는 건축물에 의미(존재)를 담아내려는 진지함으로 이해할 수 있다. 미제루 등에서 보여지는 건축가 방철린의 무의적 건축 태도는 땅(자연)과 건축(물) 그리고 사람의 관계에 관한 지속적인 탐구의 일환이며, 탄탄스토리하우스에서 제시하고자 하는 건축의 의미 또한 이런 맥락에 닿아있다고 볼 수 있다.
탄탄스토리하우스는 파주출판단지의 마스터플랜에 의거 방향성과 배치의 제약을 받게 되는데, 이는 건축가의 대지의 해석에 영향을 미친 것으로 보인다. 즉, 심학산과 한강 쪽(출판도시 진입 방향)을 잇는 긴 직육면체의 매스가 설정되고, 이를 전방 진입 도로와 대지의 방향 축과 관계 맺음이라는 일차적 건축 언어를 결정짓게 한다. 이 과정에서 건축가는 먼저 대지에서 읽을 수 있는 지형적 맥락에 따라 터를 잡고 터에 걸맞은 규모의 매스로 분할하고 배열한 것으로 보여 지는데 이는 그의 무의적 의미화, 즉 터로부터 얻어낸 의미를 구축하는 작업이라고 할 수 있다. 다음으로 터의 덩어리를 다시 매스화하여 그 위에 얹어내는 방식을 택하는데 이때 장방형의 매스는 하단 부 터의 축과 약간 틀어지게 얹게 된다. 이때 건축가는 구상적 의미를 부여하는데 이는 하단 부의 터의 의미와 함께 구축의 의미를 통합하는 건축적 의미로 통합된다. 땅의 맥락과 건축의 의미가 맺어지는 것이다. 이때 사람이라는 또 하나의 중요한 요소가 관계를 맺으며 공간은 공간의 다양한 방식을 통해 전개 된다. 다양한 공간을 통해 걷고 만나고 교류하면서 공간의 이야기가 채워진다. 땅과 건축과 사람과의 관계 맺음, 의미가 구현되는 것이다.

1층 로비에서 2, 3층을 거쳐 4층 전시실까지 이어지는 남측계단은 수직경사를 이루며 상승하며 층간의 평면 변화를 아우르게 되는 장치로서 수평․수직간의 느리고 긴 여정을 관통하는 길이 된다. 이는 건축가가 탄탄스토리하우스를 통해 아날로그적 스토리텔링을 의도하고 있음을 단적으로 보여주는 것이며, 건축가 자신의 건축 의미를 공간적으로 구체화하는 과정에서 택한 건축가의 공간적 해법이 된다. 어린 아이들을 위한 프로그램을 가진 탄탄스토리하우스에서 인터넷 등의 디지털 세계와는 달리 느리고 길게 걸으며, ‘서로 만나고’ ‘서로와 교류하며’ 다양한 사람(공간)들과의 만남을 통해 공동체 의식과 정서적인 안정감을 주겠다는 사람(사용자)을 위한 건축이라는 건축가의 의지가 공간적으로 드러나는 것이다. 이때 건축가가 택한 느리고 긴 계단은 터의 의미로부터 시작되어 구축의 의미를 따라 방향을 틀고 오르면서 탄탄하우스라는 건축의 의미를 경험하게 되는 ‘느리고 긴’ 길이 되는 것이다.



독일 슈투트가르트 대학교에서 건축․도시설계를 전공했으며, atelier a 에서 건축 및 도시설계 프로젝트를 수행하고 있다. 건국대학교 건축전문대학원, 고려대학교 등에 출강하고 있으며, 현재 한국건축가협회 평론 위원, 편찬 위원으로 활동 중에 있다.
Critiscism 4
공존의 상호 보완성에서중첩의 생산성으로
글 조준배
전체와 부분의 관계 변화: 파편의 세계에서의 전략
전근대의 유기적인 전체성 개념과 근대의 보편성의 개념이 사리진 오늘날 우리는 이러한 세계를 ‘파편의 세계’라 부른다. 좀더 부드럽게 표현하면 다양성의 시대, 차이의 시대이다. 이제 세계는 다양하고 이질적인 구성 요소들이 혼재되어 있는 세계로 읽히기 시작한 것이다. 또한 세계를 구성하고 있는 기본 또는 기반이 되는 실체보다는 각기 다른 사물들의 관계가 더 중요한 것이 된다. 즉 부분이 전체에 앞서는 또는 부분의 독립성과 자율성이 주요하며, 전체는 주어진 것이 아니라 구축해야 하는 세계인 것이다. 그러므로 이러한 파편화된 부분들이 전체를 다시 구축하는 방식 또는 원칙을 찾는 것이 현대의 시대정신인 것이다.

이제 우리에게 필요한 것은 단순히 공존하는 것을 넘어서서 어떠한 전략으로 새로운 것을 생산할 수 있을지 고민해야 한다. 다양한 부분들 간의 관계로 새로운 전체를 구축하는 전략을 모색해야 한다는 것이다. 이러한 점에서 탄탄스토리하우스는 이러한 전략을 모색하는 새로운 시도를 내포하고 있는 작품에 해당한다.
디지털 시대의 아날로그적 대안: 공존을 위한 허의 회복_매개 공간의 역할
건축가의 초기 작업은 무위와 허의 복원 등의 상위 개념을 통하여 디지털 시대의 아날로그적 치유로서 전통적 주제를 일관되게 다루는 드문 작가이다. 이러한 상위개념은 모든 부분과 다양함을 관통하여 풍성하게 만드는 원칙이며 운동의 원천인 무위는 하나이며 도이다. 도는 곧 전체성이며 관계성인 것이다.

기존 도시 조직들과의 관계를 회복하고 공동체를 위한 다양한 다세대 주택들을 대상으로 하는 초기 작품 특히 스텝 I, II, II 그리고 하늘정원 I, II를 통해서 이러한 전략들은 구체화되었다. 스텝은 단순한 장치로서 계단이나 복도가 아니라 도로와의 연장선 상에 있는 건축적 산책로, 이웃과 인사를 나누고 대화를 할 수 있는 작지만 주요한 공간, 그리고 도시에 대해 열려있는 무대로서의 다양한 역할을 담당하길 원하는 것이다. 도시와 격리되지 않고 상호교감을 갖고 도시로부터 개개의 공간에 이르는 중간적 영역의 역할을 할 수 있는 공간, 즉 매개 공간의 역할을 한 스텝의 전략이다.
작업의 연속성과 불연속성: 덩어리의 중첩과 병치의 불연속적 연속성
탄탄스토리하우스와 비슷한 시기에 진행된 북이십일, 교육과학사, 중앙입시교육연원 사옥은 단순한 기하학적 틀로서 전체성에 기반하고 보이드(void)와 독립적 박스(box)들이 공존하는 그리고 계단과 마당의 전략을 사용하는 작업의 연속성을 따르고 있다. 하지만 탄탄스토리하우스는 첫째, 4개의 부분들(box)의 중첩과 병치로 구축된 전체와의 관계를 갖는 지금까지 진행된 작업과 다른 불연속점이 발견된다. 즉 전체성보다는 단편화된 부분들이 전체를 재조직하는 방식으로서 중첩과 병치를 사용했다는 점이다. 즉 전체나 보이드의 매개 없이 직접적인 부분들의 관계를 설명하는 이러한 병치는 요소들의 관계를 서로 맞붙이는 것으로 각각의 독자적인 특성이 그대로 보존되면서 그들의 만남을 통해 새로운 의미가 발생되는 전략이며, 반면 중첩은 각 요소들이 맞붙는 것이 아니라 서로 어느 정도의 영역을 공유하면서 겹쳐 있는 전략을 의미 한다. 건축가는 덩어리라는 표현을 사용했지만 필자는 형식적 또는 형태적 측면의 성격을 더 강조하는 box라는 표현을 사용하고자 한다.
둘째, 기존의 건물은 매개 공간의 역할을 하는 계단과 마당이 주요 공간이었다면, 탄탄스토리하우스의 프로세스 다이어그램에서 알 수 있듯이 각각의 박스들 간의 다양한 결합의 방식(큰 박스와 3개의 보조적 박스의 수평적 삽입 그리고 그 박스 위에 수직적으로 2개 박스의 중첩과 수평적 병치 마지막으로 경사진 박스의 수직적 중첩) 등이 더 주요해진다. 그리고 박스들 간의 다양한 역할(기단 박스와 복도와 계단, 엘리베이터 등 보조 공용 공간 박스들, 하늘정원을 만드는 2개의 박스 그리고 도시 맥락에 반응하는 박스)로 박스들의 독립성과 자율성이 강조된다. 물론 허의 회복을 추구하는 다양한 건축적 전략들이 내부에 모두 총망라된 작품으로서 완성도가 높다고 할 수도 있지만 실제적으로는 계단과 마당은 주요 프로그램에 의한 박스의 스케일과 박스들 간의 매개 없는 중첩과 병치의 관계 때문에 다른 작품에서처럼 주요 공간으로서 작동되지 못하고 있다.
셋째, 박스가 서로 결합되는 지점, 만나는 지점 즉 수평, 수직적 중첩과 병치가 생기는 지점은 박스들 사이에는 천창의 빛이 쏟아지고 상하의 오프닝이 생기는 등 좀 더 의외성을 확보 가능한 공간이 될 수 있다는 것이다.
넷째, 4개의 박스의 각기 다른 외부재료들 같은 큰 스케일의 디테일(박스 하부의 슬래브와 보를 완벽한 박스로 보이기 위해 외부 공간에 천장 설치하는 등)과 불확정적 행위가 수용 가능한 열린 내부 공간을 구성하는 세부 디테일 간(설비 공간의 벽 두께를 줄이기 위한 유리 벽 설치 등)의 병치 그리고 파주출판단지의 특성이기도 하지만 자연과의 관계 설정이 매우 인위적이며 평면적으로 작동되어 자연에 대한 새로운 개념이 필요한 건물과 자연의 병치가 주는 새로운 가능성에 주목해야 한다.
중첩과 병치를 통한 새로운 모색: 예측할 수 없는 새로움의 생산 가능성
기존의 연속성을 유지하면서 새로움을 창출하기 위한 방안을 불연속적 연속성이라 한다면 중첩은 각 요소들이 자신의 성격을 유지한 상태에서 지속적으로 새로운 의미들을 생산해내는 전략이며 그것은 예측할 수 없는 관계 맺기이며, 각각 독자적이고 자율적인 시스템으로 구성되어 어느 것도 전체를 통합하는 역할을 할 수 없게 하는 전략이다. 탄탄스토리하우스는 중첩이라는 전략을 사용하기는 했지만 그것이 갖고 있는 다양한 새로운 가능성만을 인식한 상태라 생각된다. 주어진 것으로는 예측할 수 없는 새로운 것의 생산이 가능한 전통과 현대의 직접적인 만남이 기대된다.
조준배
건축의 현장에서 일어나는 모든 일에 가까이 하기를 좋아하는 건축가로, 현재 한국건축가협회 평론분과 위원이며, (주)AANDD 건축사사무소 소장으로 활동 중이다.



페이스북을 통해 방교수님의 근황 가끔 접하고 있습니다. 탄탄스토리 비평글을 읽으면서 방교수님의 위대하심을 다시한번 확인했습니다.
탄탄스토리 완공 무렵에 김정범의 추천으로 임진각으로 가다가 잠깐 들러 구경한 기억이 새롭습니다. 제주에서 김승태 드림
김선생님 안녕하세요. 항상 관심가져주심에 감사의 말씀 드립니다. 저는 제주도에서 김선생님같은 분을 만나 알게 된 것을 항상 자랑스럽게 생각하고 있고 또 언제나 만날 수 있으려나 생각하곤 합니다. 장마철에 건강 조심하시고 비피해 나지 않으시길 기원합니다.