

















설계소묘
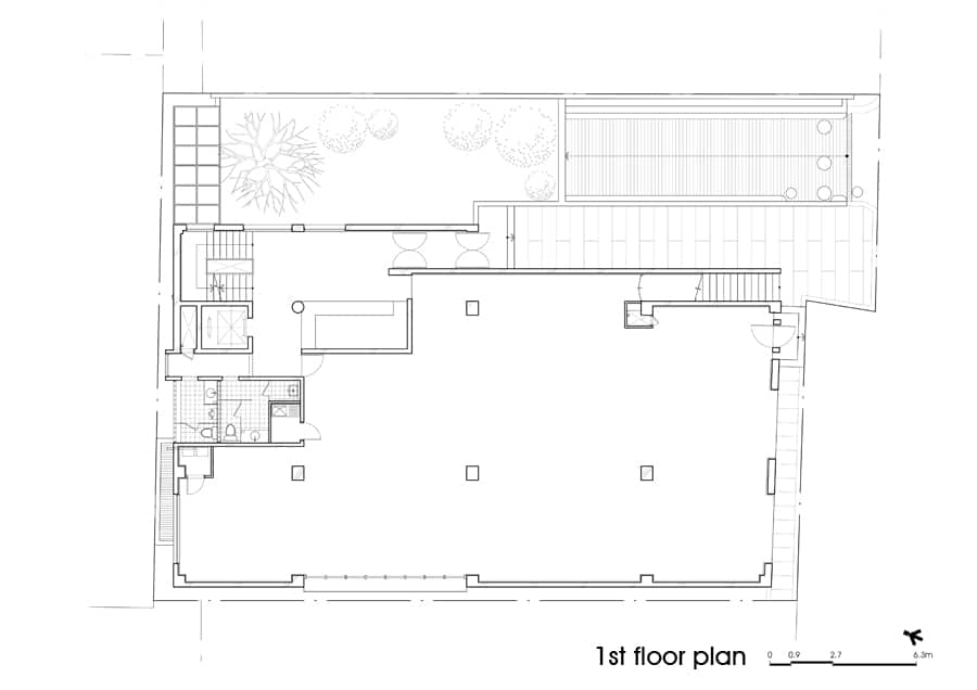
이 프로젝트의 대지는 서울 강남의 블록 안쪽 2개의 도로가 T자로 만나는 점 상부에 위치한다. T자의 수직 획에 해당하는 10미터 도로의 터미너스가 되는 장소가 곧 부지가 되는 셈이다.
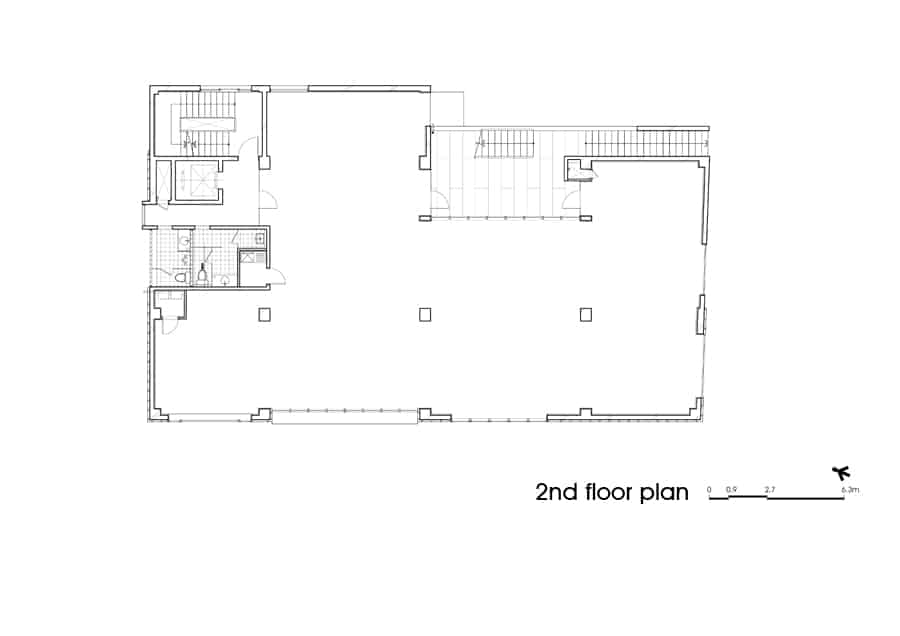
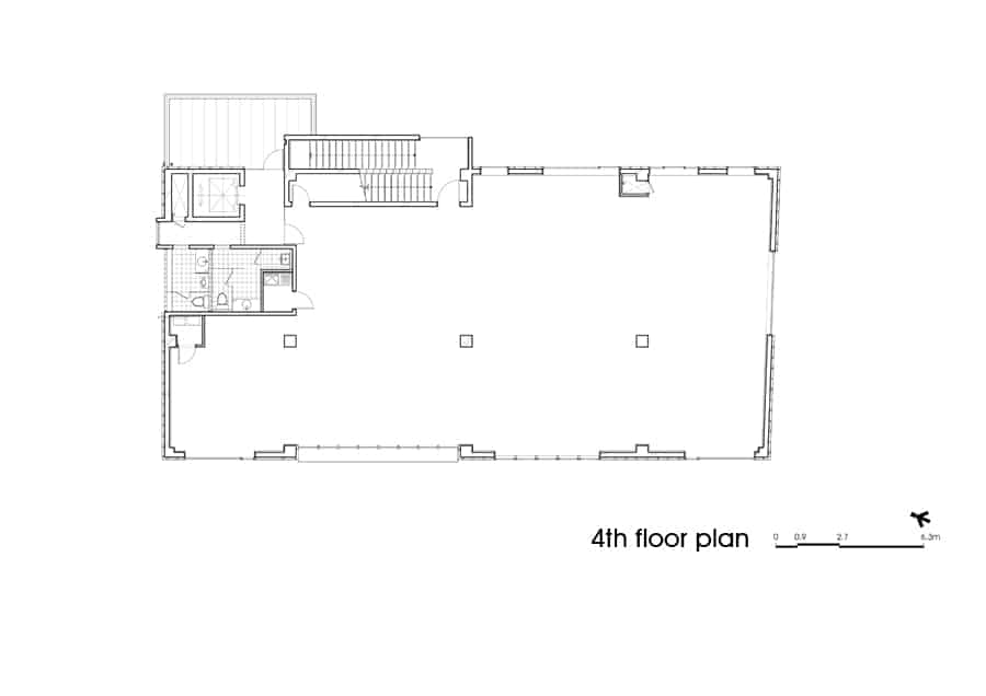
근린생활의 성격이 그러하듯 저층부에는 보통 사람의 왕래가 잦은 업종이 들어오는 것이 예사이므로 외부에서 쉽게 접근하고 직접 출입이 가능하게 할 수 있는 공간의 필요성과 이 장소를 위한 건축적 장치들을 필요로 하게 되었다. 계단, deck 그리고 발코니 등이 이곳에 계획되고 배치됨으로서 이 장소에 활기를 불어 넣어줄 수 있게 되고 장소로서의 가치를 더 가질 수 있도록 역할을 한다. 상층부에는 하늘마당을 두어 밀집된 도시구조 속에서 마음의 여유를 가질 수 있는 장소로서의 역할을 할 수 있도록 하였다. 또한 도시 속의 건축물에 의한 시선차단을 조금이라도 해소하기 위하여 하늘마당 쪽으로 열린 계단이 있는 홀의 창은 남북방향 모두 투명유리로 처리하여 도시의 열린 시선에 일조할 수 있도록 하였다.
건 축 주 : 이영자
설 계 : 방철린(건축그룹칸)
시 공 자 : 민족문화건설
위 치 : 서울시 강남구 논현동 82-13
지역지구 : 일반주거지역, 지구단위계획구역
대지면적 : 633.3㎡
건축면적 : 368.6㎡
연 면 적 : 2,404.6㎡
건 폐 율 : 58.2%
용 적 율 : 288.4%
주요용도 : 근린생활시설
규 모 : 지상6층 지하1층
외부마감 : 노출콘크리트+내후성강판
내부마감 : 노출콘크리트+석고보드위 비닐페인트
설계기간 : 2001. 5 – 2002. 5
공사기간 : 2002. 7 -2003. 6
사진 : 방철린/박영채
다른작품보기
논현동수산빌딩
북이십일사옥
교육과학사사옥
중앙입시교육원
서현동스튜디오
SPG DREAM
세원텔레텍 관양동공장
대전롯데백화점
금하빌딩
강남투윈타워(대륭강남타워+강남358타워)
the Lone Pebble
한국건설기술인회관 / Korea Construction Engineers Center
세우테크오산공장 및 사옥
가산동 일렉시티(Eleccity)
계양정밀 김천공장
계양정밀 연구소 및 제3공장 / Laboratory & 3rd factory of Kyeyang Precision co.,ltd.
나다할로나텍스 Nada Halona Tex Indonesia
청담동유현빌딩
SGR발전소사무실
미아동YEE빌딩




