

















Architectural Information of Gyoyook Gwahak Sa HQ bldg.client : Gyoyook Gwahak Sa 교육과학사
Architect : Chul-rin Bang 방 철린
Architectural firm : Architect group CAAN 건축그룹칸 종합건축사사무소(주)Location : 514-5 Munbal-ri, Gyohwa-ub Pajoo-si
Use : office
Site area : 1,023.80㎡
Bldg. area : 371.77㎡
Gross floor area : 1,070.91㎡
Bldg. coverage ratio : 36.31%
Gross floor ratio : 104.60%
Bldg. story : 4 stories above ground
Exterior finishing : exposed concrete + curtain wall
Interior finishing : exposed concrete + vinyl paint on gypsum board
Interior : Architect group CAAN
Structural team : ALT Structure
Engineering team : Kihan Engineering
Electrical team : Dongho Engineering
Construction team : Samwoo CNC
Supervision : Architect group CAAN
Design period : December. 2003- March. 2004
Construction period : March. 2005- November. 2005
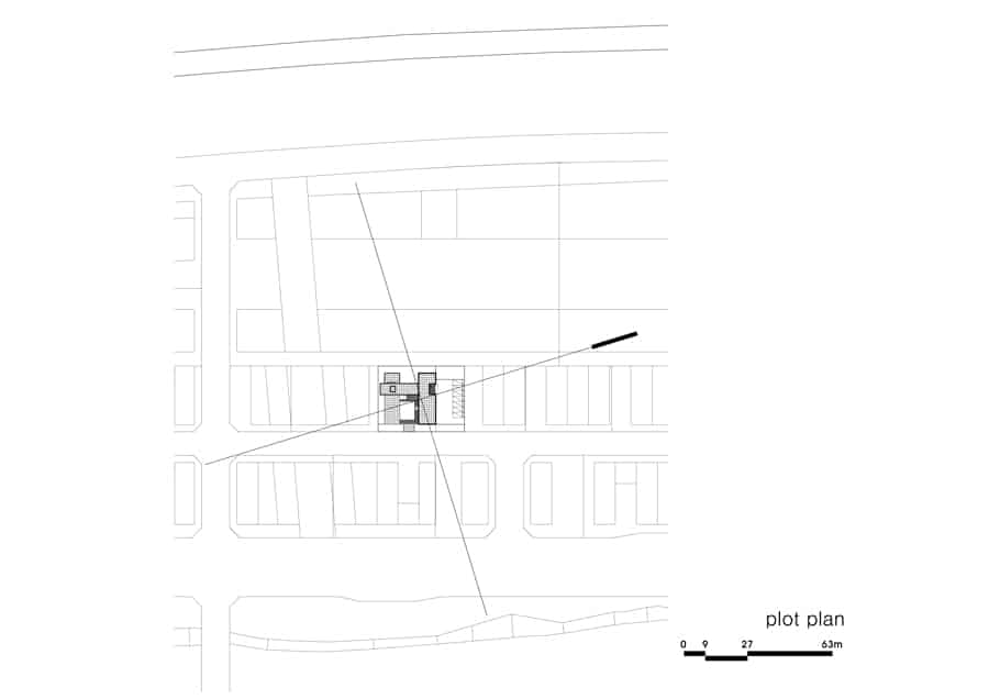
The site is located in Paju Book City.
At the west outskirt of this book city, there runs Tong-il highway parallel with the bounds of the city. And beyond the high way, lower Han-river flows from south to north. The site could excluded noise from the high way owing to two layers of two story printing houses arranged along by west bounds of this city.
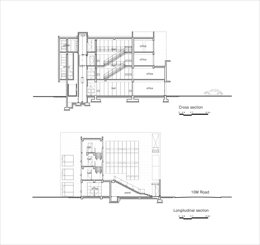
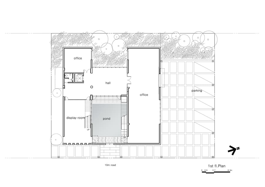
Kyoyook-Gwahak Sa HQ building was designed in the spirit of realizing the communality – objective theme of master plan of Paju Book City. In planning of building, master plan wants the concept of two parallel masses and something transparent between them. The exhibition room and storage space was set on the 1st floor. Two wings and inner court that filled with water was plotted. The view of the sunset on the 4th floor to the lower Han-river is very fine . So it was required to set the place for the sight, but it must be transparent to see through from the east side of the site . So let the clear and transparent another architectural layer crosses between two wings.
written by Chul-rin Bang
다른작품보기
논현동수산빌딩
북이십일사옥
교육과학사사옥
중앙입시교육원
서현동스튜디오
SPG DREAM
세원텔레텍 관양동공장
대전롯데백화점
금하빌딩
강남투윈타워(대륭강남타워+강남358타워)
the Lone Pebble
한국건설기술인회관 / Korea Construction Engineers Center
세우테크오산공장 및 사옥
가산동 일렉시티(Eleccity)
계양정밀 김천공장
계양정밀 연구소 및 제3공장 / Laboratory & 3rd factory of Kyeyang Precision co.,ltd.
나다할로나텍스 Nada Halona Tex Indonesia
청담동유현빌딩
SGR발전소사무실
미아동YEE빌딩




