2004 韓國建築文化大賞 本賞受賞
Main Prize at 2004 Grand Awards of Korean Architectural Culture
연하당 설계소묘
폭발적으로 증가하는 세계 인구의 축소 방안으로 덜 낳는 것을 국가적으로 권장되던 때도 있었는데, 21세기 들어서서 정보산업사회가 가속화되면서 자녀 두기를 꺼리는 부부가 늘어나는가 하면 가족도 귀찮다며 결혼도 마다하는 가치관의 변화로 이어지고, 독신으로 인생을 값어치있게 즐기며 살겠다는 부류가 자연스럽게 늘어나고 유행처럼 번져가고 있다.
이렇게 인간의 심성이 급변하고 있는 현대정보산업사회 속에 오늘날의 주거가 감당해야 할 가장 큰 역할은 무엇인가? 주거의 여러 가지 역할이 있겠지만 무엇보다도 가족을 결집시키고 서로 느끼고 아끼게 만드는 것이 가장 중요한 역할이라면, 부모 세대와 자녀 세대의 생활패턴이 다르고, 관심사가 다르고, 활동 싸이클이 다른 시대적 괴리 속에 무슨 사고를 근간으로 이러한 역할을 만족시키는 주거 건축을 만들어 낼 수 있느냐가 중요한 사안이라 아니할 수 없다.
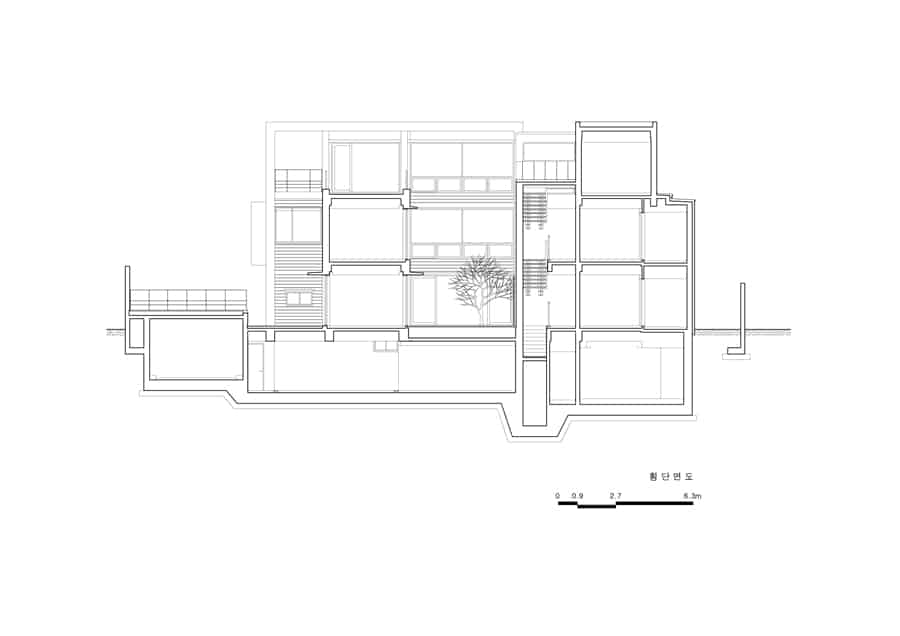
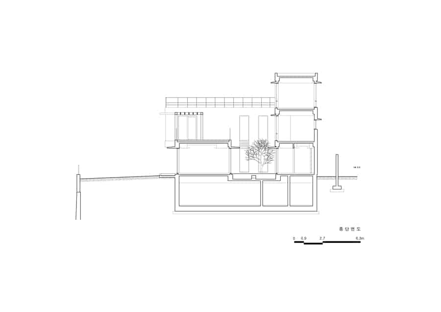
연하당(煙霞堂)에서는 이런 문제를 해소시켜주는 요소로 이 집의 중앙 부분의 마당과 층을 연결하는 계단을 등장시켰다. 마당은 실내 어느 곳에서든 접근이 가능하도록하여 다양한 쓰임새를 가질 수 있도록 하였다. 가족들은 마당을 둘러싸고 있는 투명한 유리창을 통하여 반대편에 있는 가족을 서로 인식할 수 있다. 계단의 시작점을 거실의 입구이면서 부모실의 출입구 바로 전면에 위치시킴으로써 부모와 자녀간의 만남을 자주 발생할 수 있도록 하였다.
각 실들의 독립적 이용도를 높이기 위하여 실의 외각부에는 적절한 크기의 외부공간을 두었고, 다양한 행위가 다양한 위치에서 일어날 수 있도록 공간을 구성하여 가족 각자의 활동성도 높여주었으며, 2층 전면 부분은 퍼골라를 설치하여 이 집의 전망을 만끽할 수 있는 누의 역할을 담당토록 하였다. 3층에는 긴 스튜디오를 두어 집안에서 요구될 수 있는 다양한 쓰임새를 수용할 수 있도록 하였으며, 이 집의 뒤쪽 길에서 볼 때 이 집으로 인한 시각적 차단감을 해소하기 위해 이 부분의 전·후면을 투명하게 처리하였다.
이 집의 당호(堂號)는 조선 중기 석학 퇴계(退溪) 선생의 시구절에서 여러 차례 등장하는 연하(煙霞)라는 단어를 그대로 사용하였다. 이 단어는 ‘안개가 끼어서 뿌연 풍경’, ‘안개와 이내’ 뜻으로 한국의 회화적인 분위기를 물씬 풍기는 은근한 의미를 갖고 있어, 이 주택이 갖고 있는 장소적 이미지와 경관, 그리고 공간적 분위기와 잘 어울린다고 보았다.
여기에 퇴계 선생이 자신이 태어난 경북 안동군 예안면 낙동강 상류의 아름다운 풍경을 노래한 시 한 수를 소개한다.
我家淸洛上 아가청낙상
熙熙樂閒村 희희낙한촌
隣里事東作 인리사동작
鷄犬護籬垣 계견호리원
圖書靜几席 도서정궤석
煙霞映川原 연하영천원
우리 집은 맑은 낙동강 위에 있어
한가한 마을에 태평을 즐기나니
이웃들은 봄 농사에 나가고
닭과 개는 울타리를 지켜주네
책을 쌓아둔 고요한 책상머리
안개는 강과 들을 감도누나
연하당(煙霞堂) 건축개요
| 건축주 | 정순화 |
| 건축가명 | 방철린 Bang Chul Rin / 건축그룹칸종합건축사사무소 |
| 시공자 | 김정범 |
| 건축물명 | 연하당(煙霞堂) Yeon Ha Dang |
| 대지위치 | 서울시 성북구 성북동 |
| 지역/지구 | 일반주거지역 / 자연보존지구 |
| 주요용도 | 단독주택 |
| 대지면적 | 675㎡ |
| 건축면적 | 190.11㎡ |
| 연 면 적 | 651.06㎡ |
| 건 폐 율 | 28.16% |
| 용 적 률 | 58.77% |
| 규 모 | 지하 1층, 지상 3층 |
| 구 조 | 철근 콘크리트 구조 |
| 최고높이 | 10.28m |
| 외부마감 | 노출콘크리트 + 화강석 + 단열재 위 목재패널 |
| 내부마감 | 석고보드 2겹 위 V.P. + 목재 패널 |
| 구 조 | ALT구조 |
| 설 비 | 기한 엔지니어링 |
| 전 기 | 동호기술단 |
| 설계기간 | 2002. 3. – 2002.11. |
| 건축기간 | 2002.12. – 2003.12. |




















정확한 주소를 알수잇을까요
서울시 성북구 성북동 330-496 입니다.
캐드파일 혹시 구할수있나요?
이메일주소를 알려주면 보내겠습니다.
okebary21@naver.com
저도 혹시 캐드파일을 받을수 있습니까?
안녕하세요?!
건축학과에 다니는 학생 입니다.
다름이 아니라 연하당이라는 집이 맘에 들어서 모형을 만들고 분석해 보고 싶어서 그런데요
혹시 캐드 파일이나 도면을 구할 수는 없을까요?
이메일 주소를 알려주면 보내주신다기에 이메일 주소도 첨부해 드리겠습니다.
보내주시면 정말 감사 하겠습니다.
E-mail : kjh2i@naver.com
안녕하세요 경북대학교 건축과 4학년 남영근이라고 합니다.
주택 설계 과제로 Case study를 방철린 선생님의 ‘연하당’으로 했습니다.
모형 제작을 위해 도면을 구하고 있는데, 인터넷에서는 찾기가 어려워
이곳에 글을 남깁니다. 실례가 되지 않는다면 도면파일을 좀 받을 수 있을런지요?
제 이메일은 visionist@knu.ac.kr입니다. 감사합니다.
방철린 선생님 도면 메일로 잘 받았습니다.
모형 제작시 요긴하게 사용하겠습니다. 감사합니다.
그리고, 비밀글이 아닌 제가 쓴 위에 글도 삭제 좀 부탁드립니다. 감사합니다.
안녕하십니까. 인천소재 건축과에 재학중인 3학년 정지윤 입니다.
주택 분석 과제로 방철린 선생님의 연하당을 선택하였는데요
캐드 파일을 받아볼수 있을까 하여 문의 드립니다.
메일주소 남기오니 꼭 좀 부탁드립니다. 감사합니다.^^
jiyoon_0129@naver.com
안녕하세요. 동아마이스터고 3학년에 재학중인 김유찬이라고 합니다. 제가 고등학교 졸업작품으로 방철린 선생님의 작품이신 연하당을 모형으로 만들어 보고 싶어 이렇게 문의하게 되었습니다. 다름이 아니라 연하당의 캐드파일을 받아볼 수 있을까 하여 결례를 무릎쓰고 부탁드립니다. 제 이메일은 imyc00@naver.com 이고, 나중에 선생님의 작품을 본받아 건축을 하고 싶은 3학년 학생으로서 글을 남깁니다. 감사합니다.
캐드파일구할수있을까요
안녕하세요.서울에 있는 대학교에서 실내디자인을 전공하는 학생입니다.
실례가 되지 않는다면 도면파일을 좀 받을 수 있을까요?
제 이메일 주소는 rlrod302@hanmail.net입니다. 감사합니다^^
안녕하세요 건축을 공부하는 학생입니다..
이번에 연하당을 공부하고 있는중입니다 혹시 실례가 되지 않는다면
lifeofpi12@naver.com으로 도면좀 보내주실 수 있나요???
안녕하세요
건축 건축 전공 2학년 학생입니다.
연하당에 대해서 알아보는 중인데, 캐드 파일을 수할 수 있을까요?
mama3680@naver.com 가능하시다면 꼭 좀 부탁드리겠습니다.
안녕하세요 저는 가천대학교에서 건축을 공부하는 학생입니다!
case study로 모델제작을 하면서 연구하고 싶어서요!
혹시 도면 구할 수 있을까요~!!!??
메일주소는 sungyoonj@hanmail.net입니다.
선생님 감사합니다!
안녕하세요 건축전공 2학년 학생입니다. 요즘 주택프로그램을 하고있는데 연하당에대해 조금더 알아보고싶어서요. 연하당을 모티브로 주택설계를 하고자 합니다. 실례가 되지 않는다면 도면을 보내주실수 있을까요 skchu25@nate.com 부탁드립니다.
안녕하세요! 저 또한 아주대학교에서 건축학을 전공하고 있는 학생입니다.
이 건물을 공부하고 싶어서 저도 염치없이 캐드파일을 부탁드립니다.
보내주시면 열심히 공부하겠습니다. 가능하시다면 skr526@hanmail.net으로 부탁드리겠습니다.
안녕하세요 저는 대구대학교에서 건축공학을 배우고 있는 1학년 이종호라고합니다
이번 주택 설계를 방철린 선생님의 ‘연하당’으로 하고싶어서 이렇게 글을 남깁니다.
모형 제작을 위해 도면을 구하고 있는데, 인터넷에서는 찾기가 어려워서요
혹시 실례가 되지 않는다면 도면파일을 좀 받을 수 있을까요?
제 메일은 jongho3345@naver.com입니다 부탁드립니다.
건축학을 배우고있는 1학년 학생입니다
캐드 도면을좀 구할수 있을까해서 댓글을 남깁니다
skdwkr@naver.com 으로 부탁드리겟습니다
안녕하세요 저는 호서전문대에서 건축과 인테리어를 배우고 있는 2학년 김형섭이라고 합니다.
이번 주택 설계를 방철린 선생님의 ‘연하당’으로 하고싶어서 이렇게 글을 남깁니다.
모형 제작을 위해 도면을 구하고있는데 인터넷으로 찾기가 어려워서요
혹시 실례가 되지 않는다면 도면(캐드파일)좀 받을수있을까요? 부탁드리겠습니다.
제메일은 yh98huw@naver.com입니다. 부탁드리겠습니다.
안녕하세요 저는 동양미래대학교에서 실내건축과를 다니고 있는 최나영이라고 합니다.
저의 컨셉과 굉장히 잘 맞는 집인거 같아서 좀 더 공부를 하고 싶은 마음에 이렇게 염치없이 캐드파일을 부탁드립니다..ㅠㅠ ‘연하당’건물의 캐드파일 좀 받을 수 있을까요?
제 이메일은 un1004na@naver.com 입니다!
안녕하세요 저는 호서대학교에서 건축학을 배우고있는 2학년 김태용이라고 합니다.
이번 주택 설계에서 방철린선생님의 ‘연하당’을 모티브로 조사를 하고있습니다.
모형제작을 위해 도면이 필요한데 인터넷으로 찾기 힘들고 사진도 많이 부족해서 이렇게 글을 남깁니다. 실례가 되지 않는다면 도면파일 이나 내부사진이나 방철린선생님의 건축의도를 알고 싶습니다. 부탁드리겠습니다. 제 메일은 yd044506@naver.com 입니다.
안녕하세요 저는 서울과학기술대학교 건축학과를 전공하고 있는 학생입니다. 이번년에 주택 설계를 하게 되었는데 방철린 선생님의 ‘연하당’을 배우고 싶어 글을 남깁니다. 모형을 제작하기에 도면을 구하고 있는데 인터넷과 책으로는 정보가 부족하여 혹시 실례가 되지 않는다면 도면 캐드파일을 받을 수 있을까요? 제 메일은 j082900@naver.com (j만 영어입니다) 입니다. 도면을 토대로 모형을 제작하여 더욱 자세히 공부하고 싶습니다. 부탁드리겠습니다.
안녕하십니까 건축 전공하고 있는 학생입니다.
이번 구조 과제로 주택 분석을 하게되어 방철린 선생님의 연하당을 선택하였습니다.
실례가 되지 않으면 캐드 파일을 받을 수 있을까요? 부탁드리겠습니다
sk2tm@naver.com 입니다. 부탁드리겠습니다
메일주소 남기오니 꼭 좀 부탁드립니다. 감사합니다.^^
안녕하세요. 건축 전공하고 있는 학생입니다.
이번 구조 설계 과제에서 주택 분석으로 방철린 선생님의 연하당을 선택하였습니다.
실례가 되지 않는다면 캐드 파일을 받아볼수 있을까 하여 문의 드립니다.
메일주소 남기오니 꼭 좀 부탁드립니다. 감사합니다.^^
sk2tm@naver.com 부탁드립니다.
안녕하세요 저는 실내 디자인에 대해 공부하고 있는 학생입니다. 학교에서 ‘주택설계’ 라는 수업에서 도면을 보고 직접 모형을 만드는 과제를 하게 됐습니다. 선생님의 연하당을 작품을 모형으로 만들어보고 공부하고 싶은 마음을 가지고 댓글을 남기게 됐습니다. 실례지만 혹시 도움을 주실 수 있다면 평면도와 입면도 도면파일을 메일로 보내주실 수 있으신가요? 메일주소 남깁니다 좋은 하루 되세요. ten9392@naver.com