




















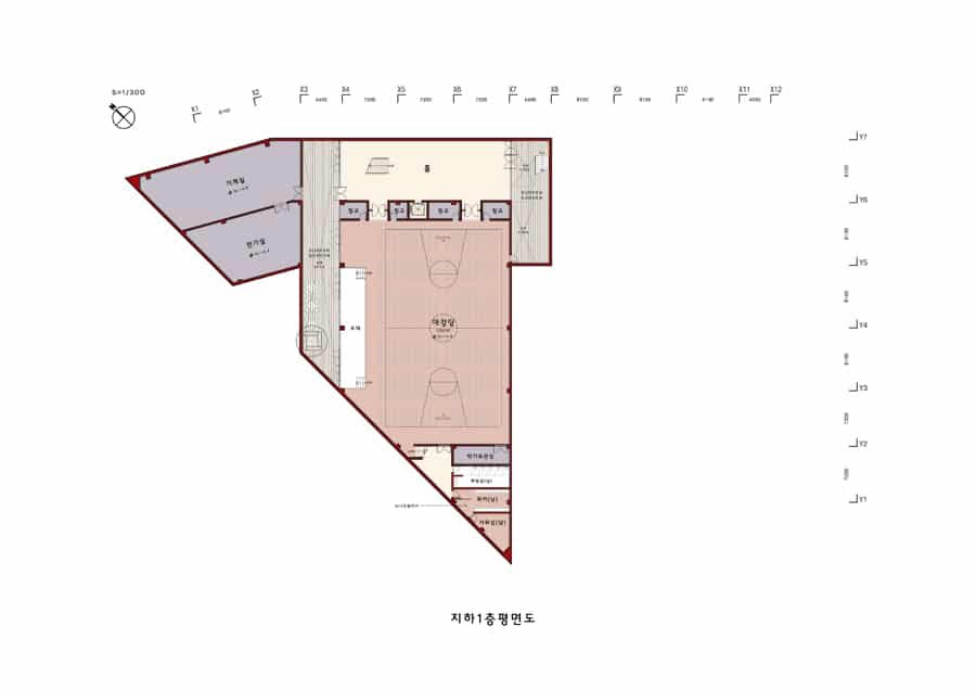
OOO기독중고등학교 건축개요
대지위치 : 경기도용인시 기흥구 미북동
대지면적 : 3751m2
지역지구 : 제2종 일반주거지역
연면적 : 6,166.32m2
규모 : 지하1층지상5층
설계 : 방철린(건축그룹칸종합건축사사무소+서인건축)
설계담당 : 김용아 김은실 김선정
설계기간 : 2008.09~2008.09
다른작품보기





















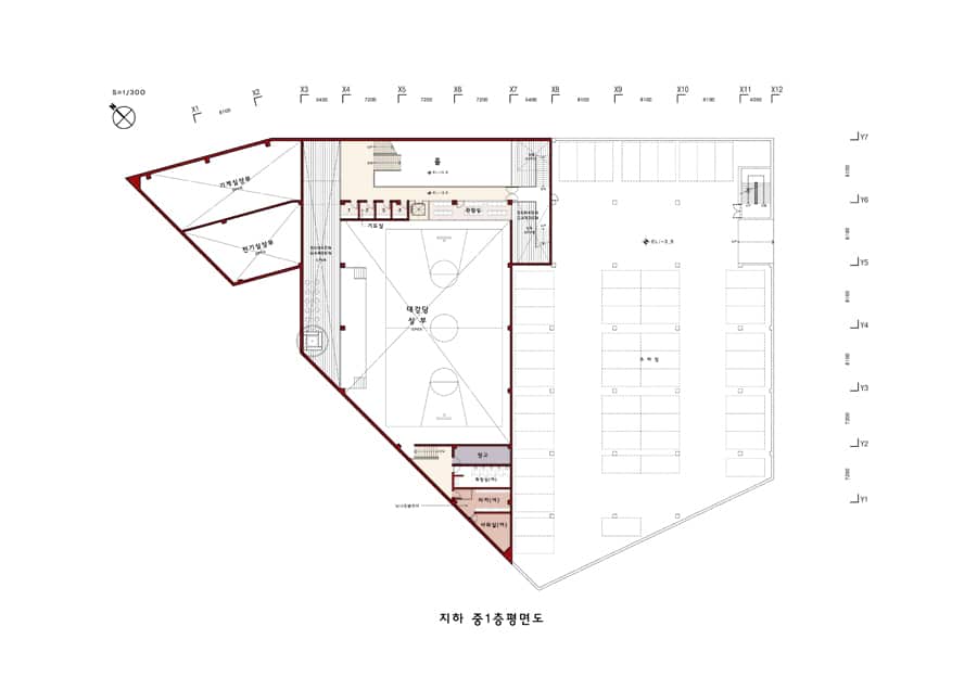
대지위치 : 경기도용인시 기흥구 미북동
대지면적 : 3751m2
지역지구 : 제2종 일반주거지역
연면적 : 6,166.32m2
규모 : 지하1층지상5층
설계 : 방철린(건축그룹칸종합건축사사무소+서인건축)
설계담당 : 김용아 김은실 김선정
설계기간 : 2008.09~2008.09