
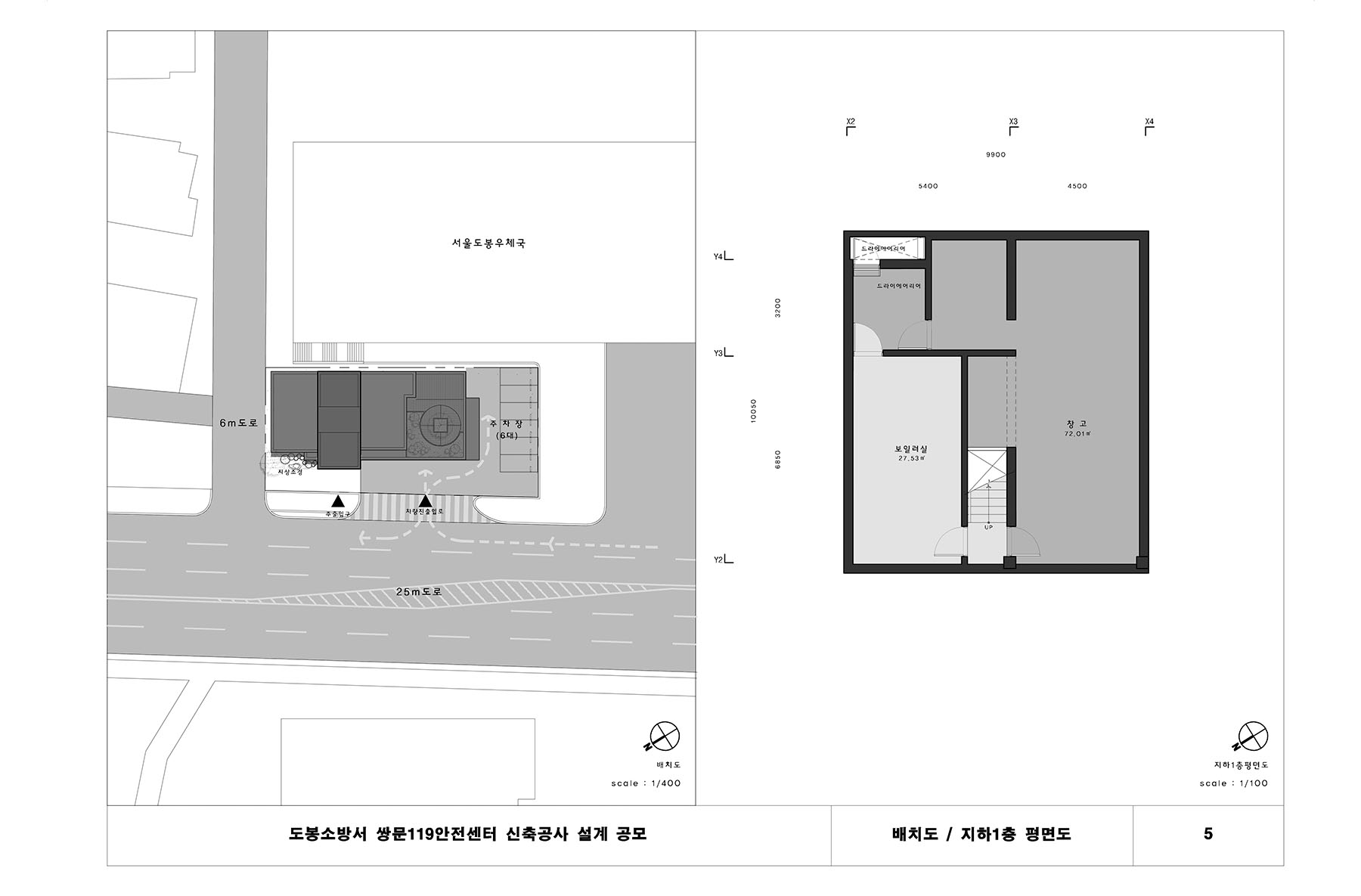
배치도, 지하1층평면도

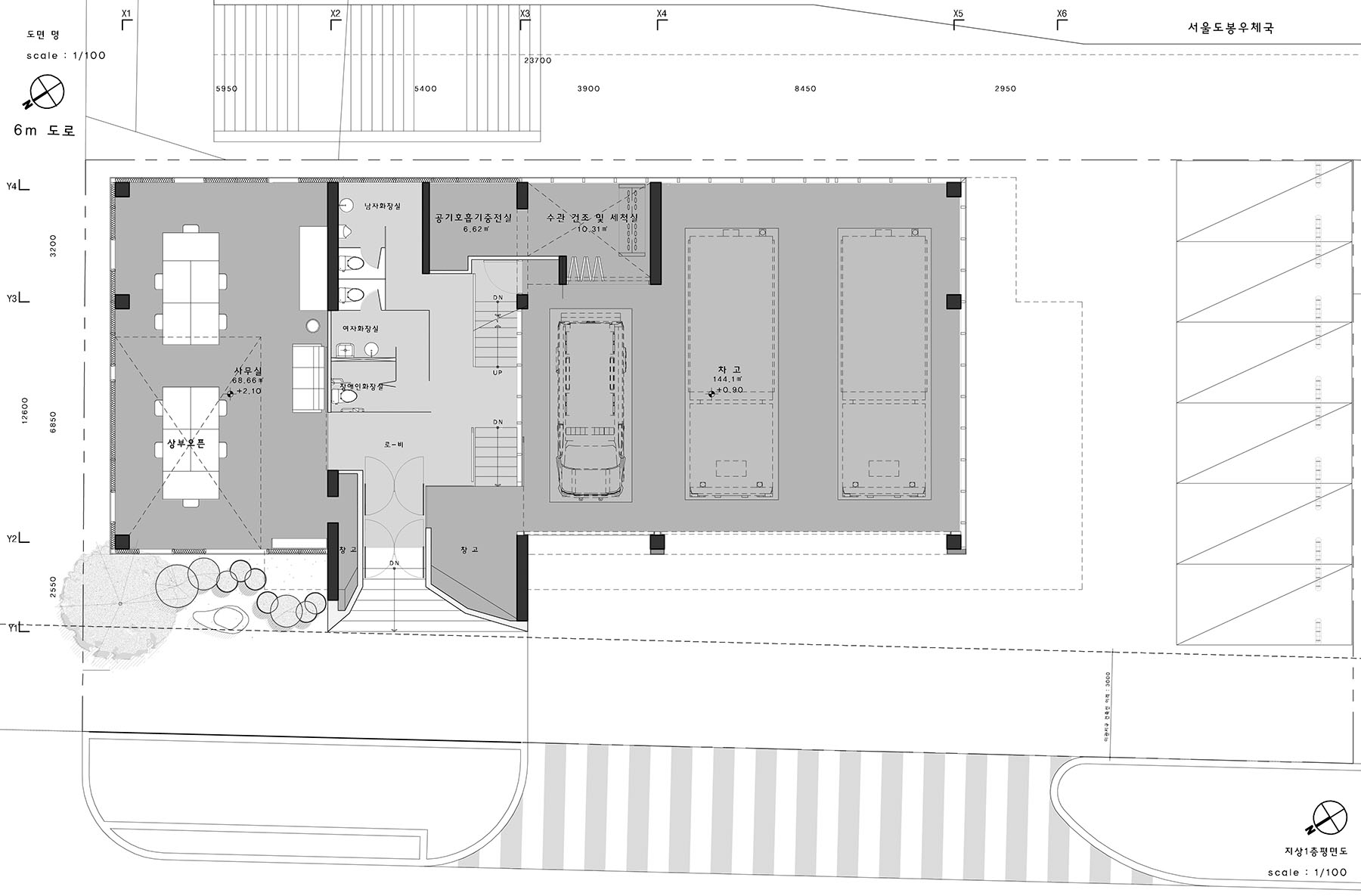
1층평면도

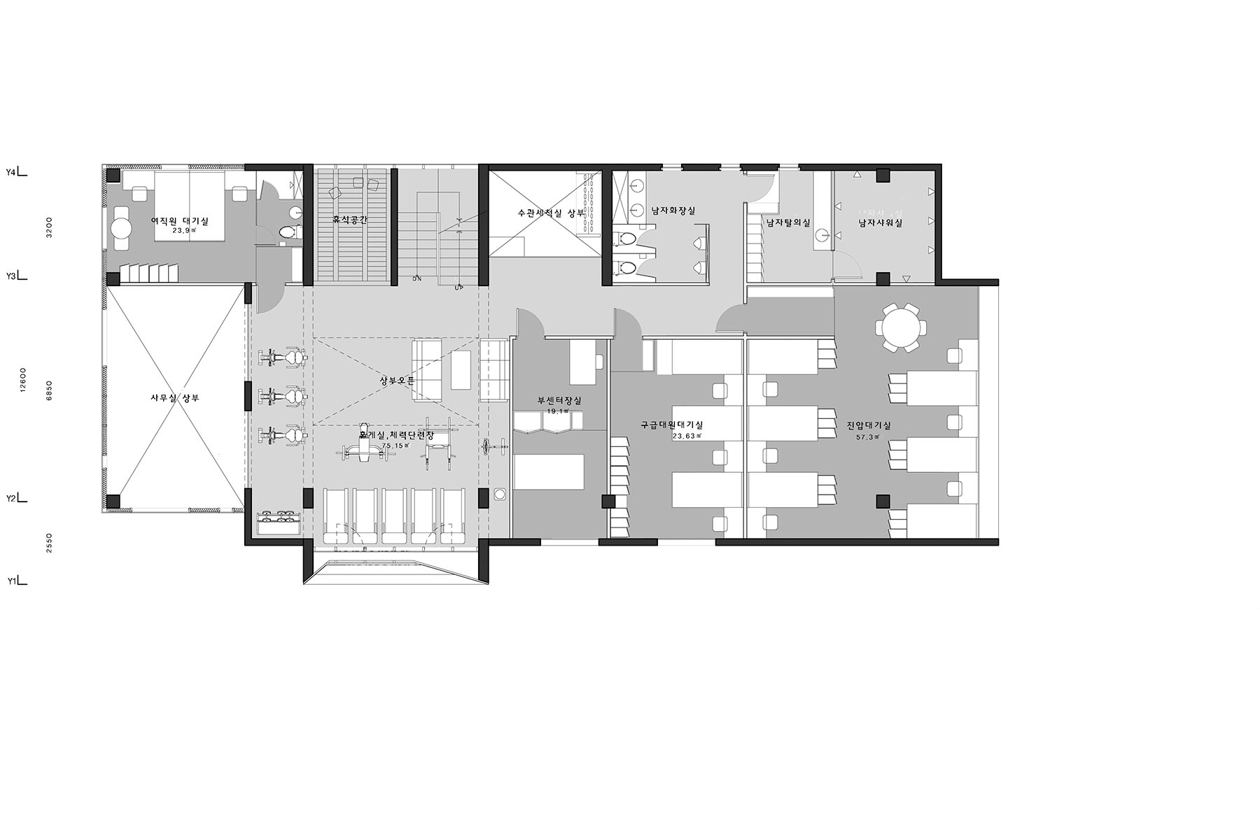
2층평면도

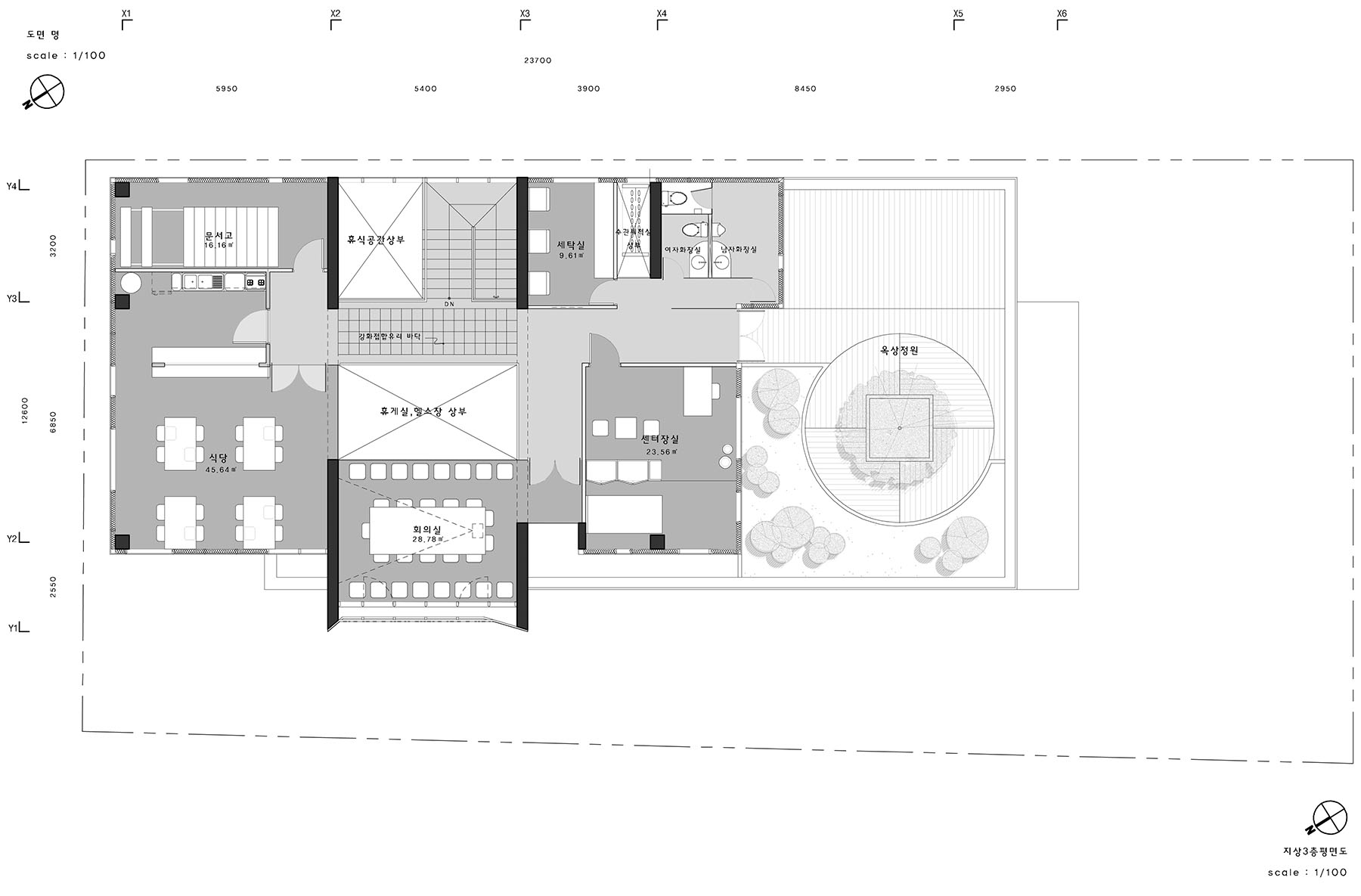
3층평면도

횡단면도

종단면도

정면도

좌우측면도

배면도

설계개요
설계경기 당선작
설 계 방철린/칸 종합건축사사무소(주) Bang Chul-rin/Architect Group CAAN
위 치 서울특별시 도봉구쌍문동 346-3번지
용도지역 제2종일반주거지역,일반미관지구,공공청사
대지면적 606㎡
건 폐 율 50.98%
연 면 적 819.4㎡
용 적 율 135.21%
도로현황 25m/6m도로에 접함
주차대수 6대
층 수 지하1층/지상3층
구조방식 철근콘크리트라멘조
담 당 곽상혁, 백종엽
설계기간 2013.12.24.-2014.4.5.
공사기간 2014.6.30.-2014.12.31
다른작품보기




