
















건축개요
건 축 주 : 김한중
건축설계 : 방철린
시 공 자 : 범신창건
위 치 : 경기도 가평군 상면 태봉리 241-5
지역지구 : 준농림지역, 군사시설보호구역
부지면적 : 2,235m2
대지면적 : 606.0m2
건축면적 : 155.2m2
연 면 적 : 198m2
건 폐 율 : 25.6%
용 적 율 : 33%
주요용도 : 주택
규 모 : 지상2층 지하1층
외부마감 : 노출콘크리트+단열재위 목제패널+단열재위 아크릴수지마감
내부마감 : 노출콘크리트+석고보드위 비닐페인트+목제패널
설계기간 : 2002. 3 – 2002. 4
건축기간 : 2002. 5 – 2003. 1
산빛마당 설계소묘
펜션하우스를 해보겠다는 건축주가 나에게 찾아 온 것은 집을 지어 주겠다는 다른 사람을 이미 만나 본 후의 일이었다. 그 사람과 집의 이야기를 한참 나누다가 설계 과정도 없이 이들과 먼저 이야기하는 것이 과정상 잘못 되었음을 뒤늦게 인식하고 친구의 소개로 사무실을 찾아온 것이었다. 건축주는 나름대로의 정보에 의해 이 집에 대해 적절하다고 믿고있는 프로그램을 갖고 있어 그 내용을 나에게 모두 털어놓았다. 그리고 설계에 필요한 기본적인 프로그램 외의 집에 대한 모든 디자인은 나에게 맡기겠노라고 하였다.
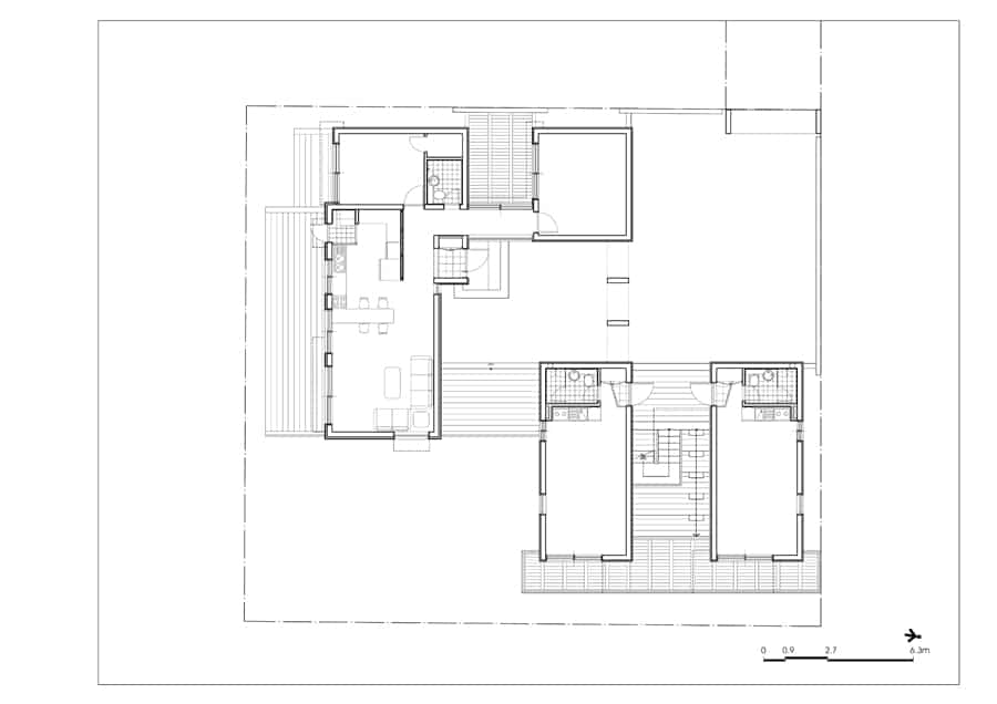
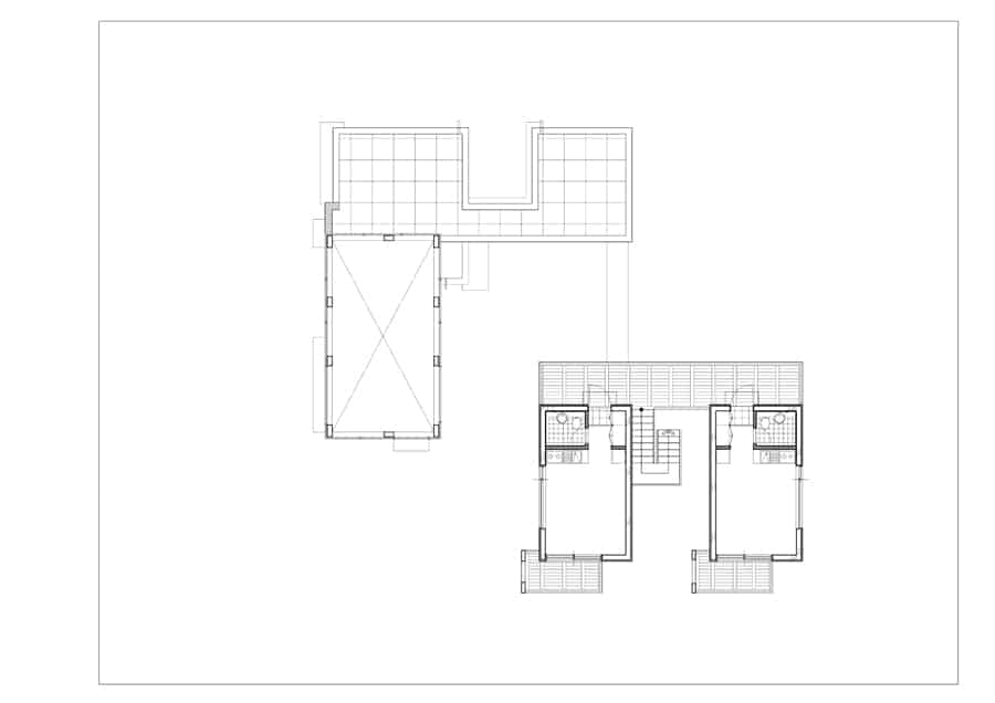
주변 자연경관이 조용하고 한적한 전원에 확보된 800여평의 부지와 60평정도 규모의 집에 부부가 살집과 손님이 묵으며 편히 쉬게 할 수 있는 4개의 객실을 갖게 하는 것 – 이 것이 필요한 프로그램의 개략이었다.
이 곳 태봉리를 처음 찾았을 때 부지는 작은 마을의 어귀에 위치하고 있고 동네 분위기와 주변의 자연의 구성으로 볼 때 이 곳에 짓는 집은 거대해 보이는 한 개의 덩어리로서의 건축이기보다 작은 여러 개의 조각으로 만들어진 구성적 집이 더 동네와 자연에 친화적이며 동네와 이 집에 편안함을 주게 될 것이라 여겼다.
다음으로 생각한 것은 이 집의 이용자였다. 이 집- 「산빛마당」은 이용 면에 있어서 두 가지의 다른 성격의 사용자를 갖게 되는데 이 곳에서 항상 먹고 자며 생활을 하여 이 곳을 삶의 터전으로 생각 해야하는 건축주 부부와 이 곳에서 휴식을 취하고 재창조의 기회로 삼을 수 있는 기반으로서의 장소로 생각하는 객(客) – 이 둘 사이의 이 집에 대한 생각은 다른 시각으로 볼 수밖에 없을 것이라는 생각이 들었다. 늘 생활해야 하는 이용자(건축주)와 일시적 방문객 사이에는 장소와 공간을 보는 눈과 느껴지는 감정 그리고 눈앞에 펼쳐지는 풍경에 대한 감흥 등에서 서로 그 느낌이 다를 수밖에 없으며 장소의 쓰임새 또한 같지 않음이 당연한 일이라 생각하였기 때문이다.
이러한 상념들을 안은 채 이 집의 계획이 진행되었다. 우선 영역을 구분하는 일에서부터 계획이 시작되었다. 외부의 진입도로영역과 부지간의 구분, 객의 영역과 주인의 영역간의 구분, 그리고 객간의 영역상호구분이 그 것이다. 영역의 구분으로 구성된 이들은 분리개념이 아닌 상호의 연관을 더 중시하고 더 관심을 갖게 하는 채의 개념을 가지게 되며 자연스레 그 사이에 각각 고유의 성격을 가질 수 있는 장으로서의 마당의 개념을 갖는다. 그리하여 생긴 공간들에는 이용하는 그룹의 성격에 맞게 특성을 부여된다. 건축주의 공간은 좀더 차분하고 안정됨이 강조되는 반면 객들이 묵는 영역의 공간들은 좀더 다이나믹하고 짧은 시간에 다양한 경험을 할 수 있는 기회가 제공될 수 있도록 한다. 이렇게 나뉘어진 영역과 공간구성은 앞에서 이야기한 것 같은 도시 와 자연을 생각하는 이 집의 도시에 대한 걸 맞는 태도를 갖게 만든다고 믿는다.
사방으로 전개되어 펼쳐진 주변 경치는 독특한 경관을 가지고있다. 그래서 실의 위치와 방향에 따라 실들의 창문 방향을 선택적으로 정하여 배치하였다. 따라서 이 집의 창 밖으로 펼쳐지는 경관은 위치에 따라 모두 다르므로 실마다 고유한 분위기를 창출할 수 있는 가능성을 갖는다.
건축주는 이 집의 이름을 지어 줄 것을 나에게 부탁하였다. 건축주와의 대화속에서 건축주는 서예를 매우 즐겨하는 것을 알게 되었고 건축주의 두인(頭印)이 「산빛」임을 알게되었다. 이 곳이 산빛 가득한 전원임에 틀림없는 곳인데다 객들이 모일 수 있는 마당을 계획하고 있어 「산빛마당」이 어떻겠냐는 의견이 제시되었으며 이에 건축주와 의견의 일치를 보게되었다.
늘 선물을 사들고 사무실을 찾아오곤 하는 건축주는 직접 지은 시와 단풍잎이 담긴 테이블받침을 나에게 선물하였다. 이런 정성어린 손길 때문인지 공사는 순조롭게 잘 진행되고 있다. 이런 정성으로 이 집이 지어지고 가꾸어진다면 분명 이 집은 잊혀지지 않을 좋은 집으로 남게 될 것이다.
방철린記

산빛마당 관련기사 – 중앙일보 03035 정재숙기자의 새집구경 ‘경기도 가평군의 산빛마당’
다른작품보기




