













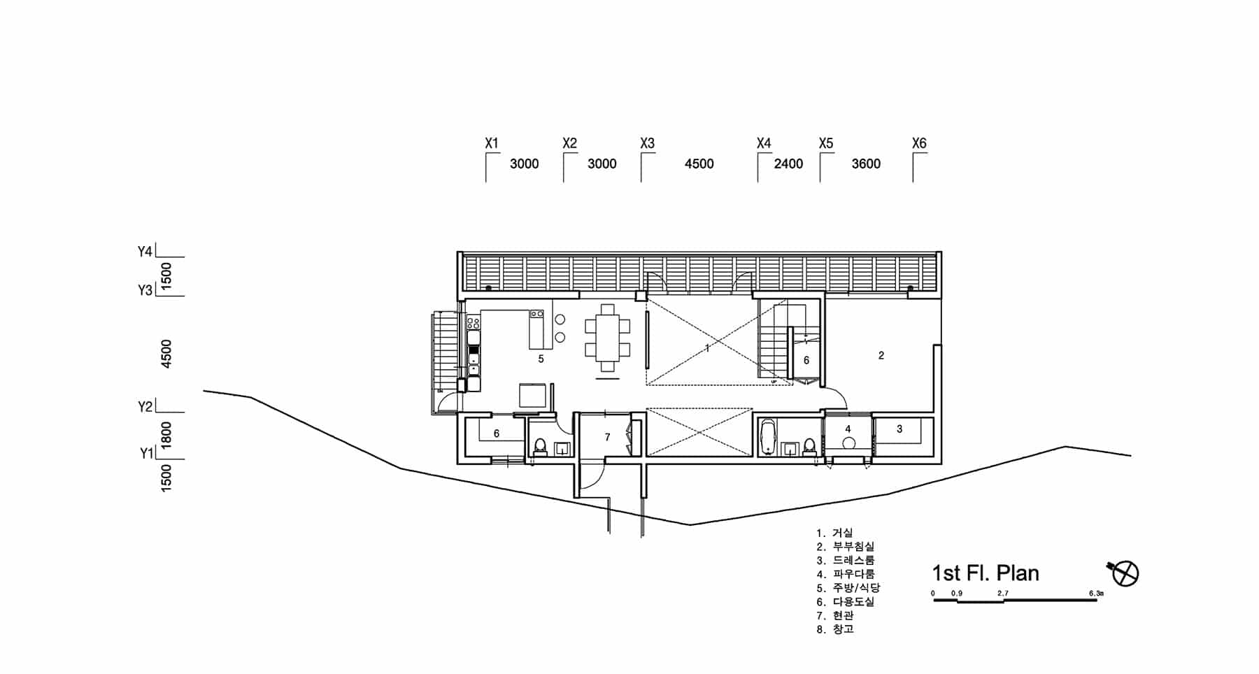
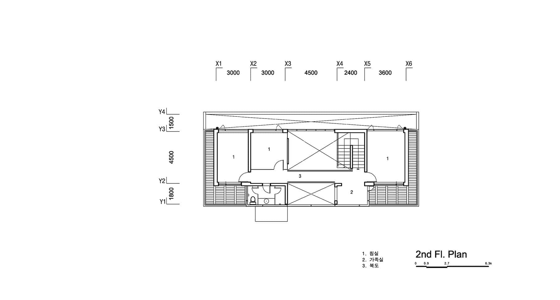
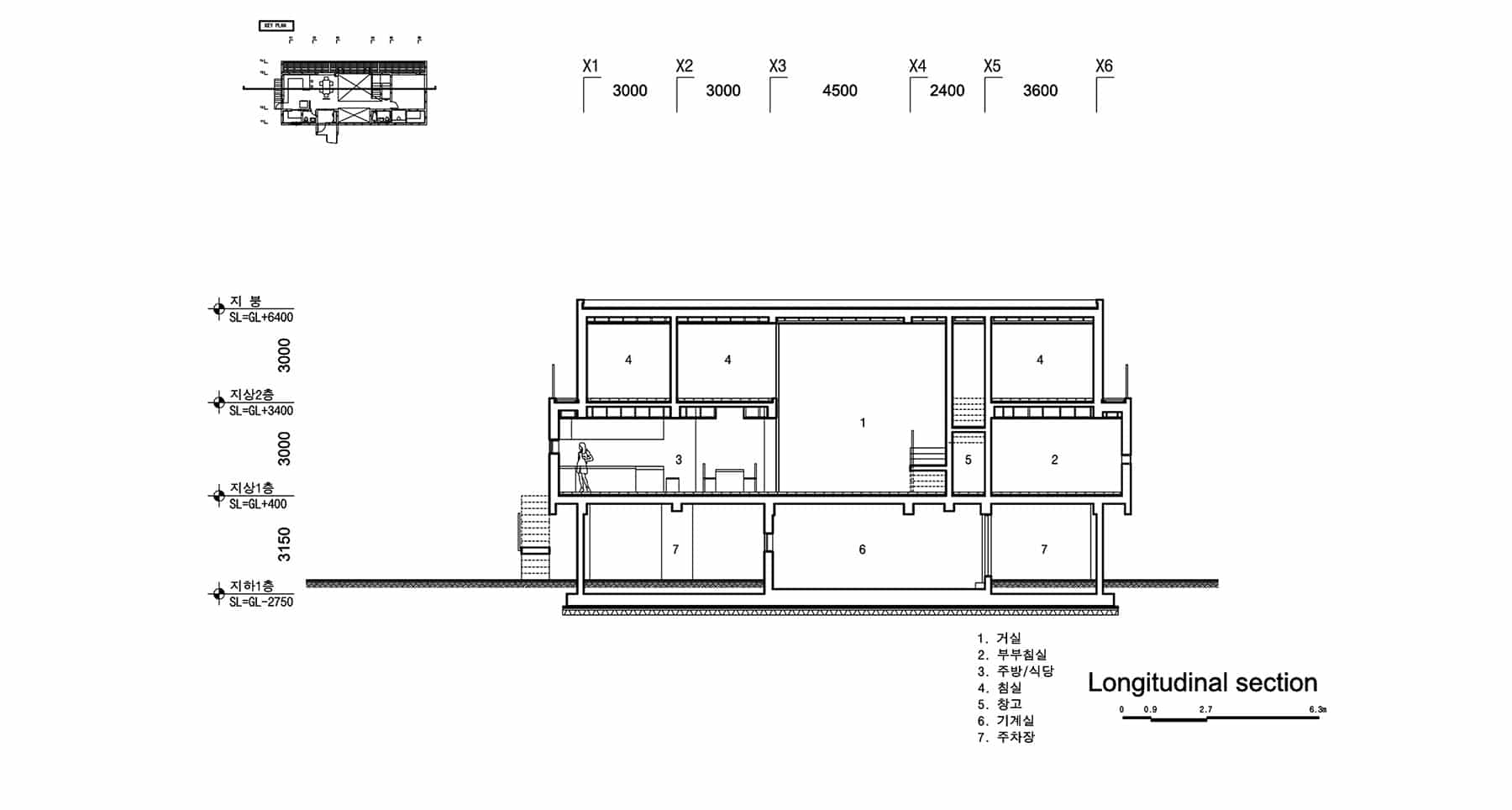
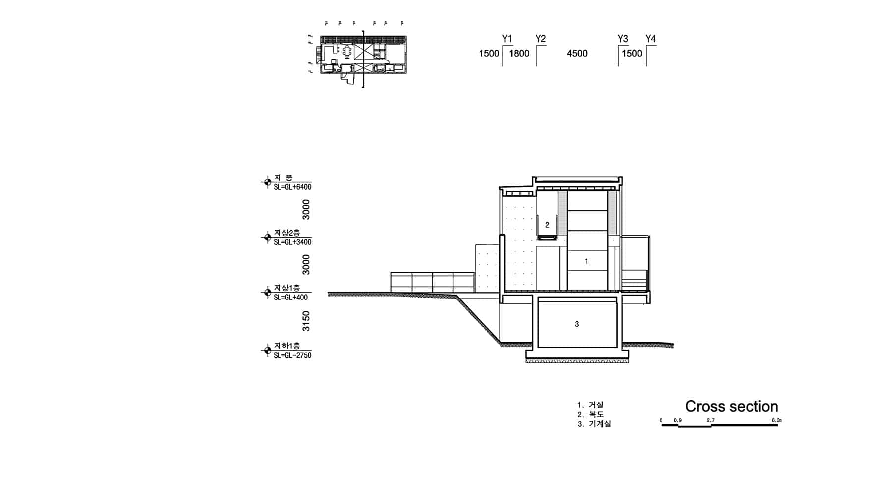
도수리주택은 경기도 광주 국도에서 약 1㎞ 산속으로 계곡을 거슬러 올라가 계곡을 끼고 있는 마당같이 생긴 평평한 부지에 계획되었다. 이 곳 산속에는 나무도 많지만 계곡의 물이 많고 맑아 갈수기 때에도 제법 물의 풍요로움을 느낄 수 있어 요산요수(樂山樂水)의 정취를 만끽하기에 충분한 장소이다. 부지가 도로로부터 2-3미터 꺼져 있는지라 땅 위에 그냥 집을 짓는 것은 자칫 주택으로서의 프라이버시가 문제가 될 것이 염려되어 필로티로 한 층을 띄워 도로와 같은 레벨에 1층을 계획하였고 가급적 현재의 자연을 건드리지 않은 상태에서 현관에 이르도록 하기 위해 브릿지로 연결했다. 대지와 대지주변에는 나무가 많아서 숲속에 사는 느낌을 강조하고자 거실의 상부를 높게 하고 앞뒤로 높은 창을 설치하여 자연을 그대로 느낄 수 있게 했다. 거실 상부를 통과하여 침실로 연결되는 브릿지는 가족의 친목을 도와줄 뿐 아니라 주변자연 감상에도 도움이되도록 하였다. 그러나 건축공사가 설계된 의도와 관계없이 전혀 다르게 진행되어 이 곳에 사진을 올리지 못하게 됨을 매우 애석하게 생각한다. 방철린記
도수리주택건축개요
건축설계 : 방철린 칸종합건축사사무소(주)
대지위치 : 경기도 광주시 퇴촌면 도수리 33번지
지역지구 : 관리지역, 수질보전특별대책지역 1권역
용도 : 단독주택
대지면적 : 777.00 ㎡
건축면적 : 121.53 ㎡
연 면 적 : 193.53 ㎡
건 폐 율 : 15.64 %
용 적 율 : 23.20 %
규모 : 지상 2층, 지하 1층
구조 : 철근콘크리트구조
내부마감 : 석고보드 위 고급벽지, 수성페인트
외부마감 : 노출 콘크리트, 송판무늬 노출콘크리트
설계담당 : 박운정, 유정환
설계기간 : 2005. 10 – 2005. 12
공사기간 : 2006. 01 – 2006. 09
다른작품보기
도수리주택
철산리주택
광장동 주상복합
연하당
산빛마당
효자동128-13주택
효자동128-11주택
미제루
하늘마당2
하늘마당
양추헌(陽湫軒)
연남동스텝
탁심정이 있는 마을
수석동 매송헌(呆松軒) / Maesong Heon
제주스테이 비우다 /Jejustay BIUDA
파리국제대학촌 한국관 / Maison de la Corée/Cité Internationale Universitaire de Paris
구례 가족호텔 / Gurye Family Hotel




